User Manual
Table Of Contents
- 1747-6.8, Direct Communication Module User Manual
- Important User Information
- Summary of Changes
- Table of Contents
- Preface
- 1 - Overview
- 2 - Quick Start for Experienced Users
- 3 - Addressing
- 4 - Module Configuration
- 5 - Installation and Wiring
- 6 - Programming
- 7 - Troubleshooting
- 8 - Application Examples
- A - Specifications
- B - DCM Addressing Worksheet
- Index
- Back Cover

Chapter 6
Programming
6–3
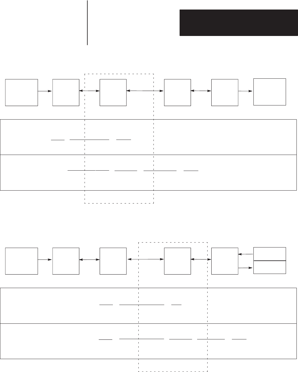
Physical Input into SLC – Physical Output from PLC
] [
00
( )
00
] [
00
]/[
10
( )
O:001
00
PLC
SLC
PLC
Processor
RIO
Scanner
DCM
SLC
Processor
RIO
Input Output
IN
OUT
I:021
I:020
I:2.0
O:3.1
Logical Or Status Bit
Physical Input into Both PLC and SLC (Logical AND) – Physical Output
from SLC
] [
I:000
00
( )
O:021
00
] [
I:3.1
00
]/[
I:3.0
08
( )
O:1.0
00
PLC
SLC
PLC
Processor
RIO
Scanner
DCM
SLC
Processor
RIO
Input
Output
Input
] [
00
IN
OUTIN
I:2.0
Logical Or Status Bit