Manual

Table Of Contents
41
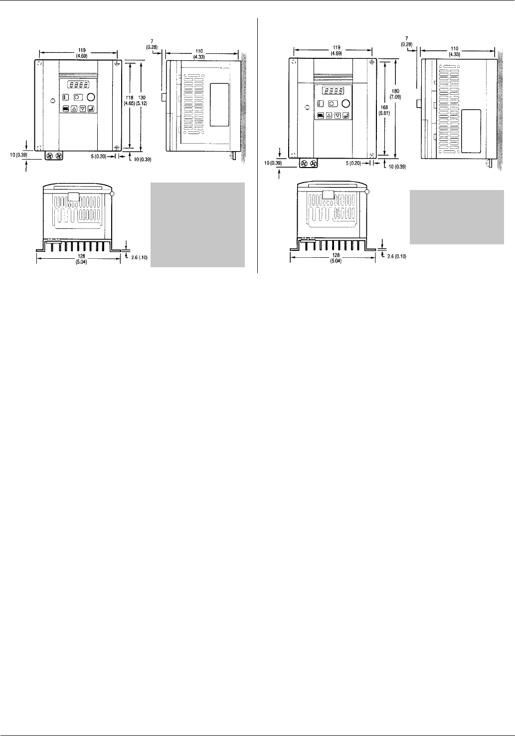
Specifications & Dimensions
DA01 / DA02
DA04
Mass Kg (lb)
DA01
DA02
1.1 (2.42)
1.2 (2.64)
Mass Kg (lb)
DA04
1.5 (3.31)