Reference Manual Owner's manual
Table Of Contents

All parameters are specified at 24V, 2.5A, 230Vac input, 25ªC ambient and after a 5 minutes run-in time unless noted otherwise.
16 Rockwell Automation Publication 1606-RM033A-EN-P — March 2014
Bulletin 1606 Switched Mode Power Supplies
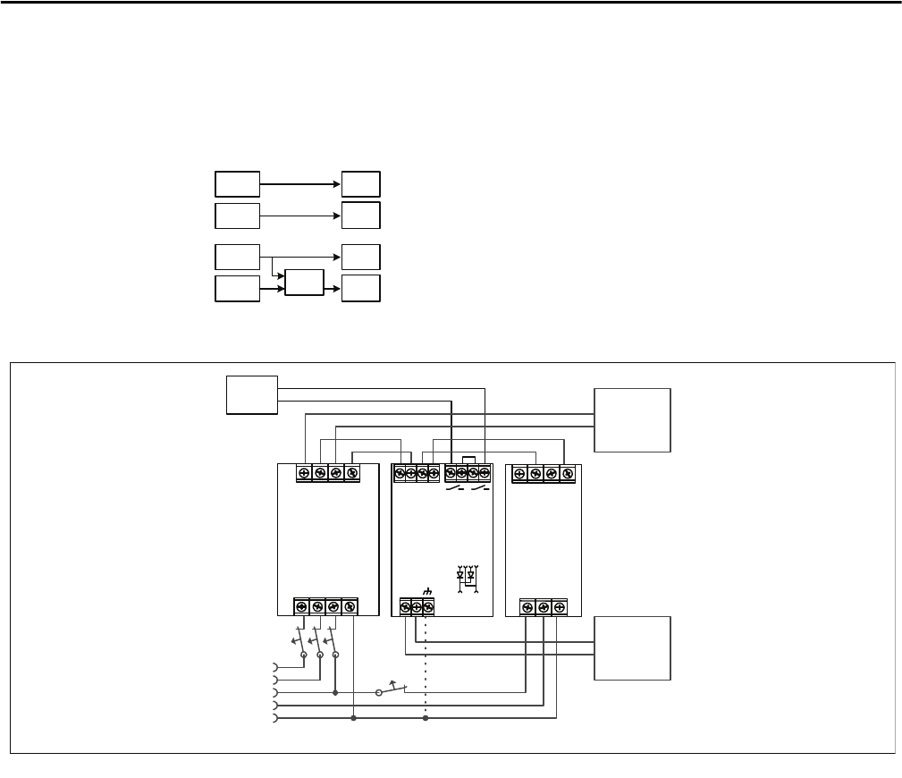
19.6. Example: Redundancy for Controls
The example shows a cost effective solution to get redundant power for a PLC or controller system.
In many cases, two power supplies are used; one for the demanding loads and the second for the controls and
sensitive loads. The power supply for the demanding loads can be used as a redundant source to supply the controls.
Traditional approach:
LoadPS1
PLC
PS2
Improved approach:
Load
PLC
PS1
PS2
XLE
RED
Fig. 19-4 Wiring diagram, redundancy for sensitive loads
Failure
Monitor
Sensitive
Load
e.g.
Controller
optional
I I I
L1
L2
PE
L3
I
N
Heavy
Loads
e.g. Motors
L N PE
5A
Power
Supply
+ +
- -
24V, 5A
L1 L2 L3 PE
20A
Power Supply
+ +
- -
24V, 20A
1606-XLERED
+
-
OUT
+
-
IN 1
+
-
IN 2
IN 1 IN 2
Note: Whenever possible, use separate mains systems for each power supply.