User Manual
Table Of Contents

3-4 Installation and Wiring
1503-UM 052D-EN-P – June 2013
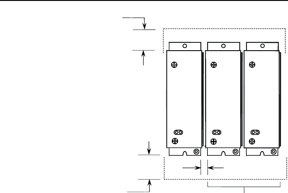
38.1
(1.50)
38.1
(1.50)
6.4 (0.25)
Additional Modules
(as required)
Minimum bottom clearance
Minimum top clearance
Dimensions in mm (inches)
38.1
(1.50)
38.1
(1.50)
6.4 (0.25)
Additional Modules
(as required)
Minimum bottom clearance
Minimum top clearance
Dimensions in mm (inches)
Figure 3.2 – Typical Mounting Configurations
Note: Adjacent IntelliVAC modules may be mounted with a
minimum separation of 6.4 mm (0.25 inches).
Arrangements (cont.)