Accessories Manual
BULLETIN 1494V VARIABLE DEPTH DISCONNECT SWITCH
INSTALLATION INSTRUCTION SHEET
5 1020139
7 1032142
42052-116
OF
N/A
N/A
N/A
REVISION
AUTHORIZATION
DR.
CHKD.
APPD.
DATE
DATE
DATE
E - DOC
LOCATION: MILWAUKEE, WISCONSIN U.S.A.
DWG.
SIZE
SHEET
B
1 2 3 4 5 6 7 8
A
B
C
D
E
F
G
H
REFERENCE
DIMENSIONS APPLY BEFORE
SURFACE TREATMENT
(DIMENSIONS IN INCHES)
TOLERANCES UNLESS
OTHERWISE SPECIFIED
.XX:
.XXX:
ANGLES:
42052
------------- -------------
-------------
-------------
-------------
-------------
THIS DRAWING IS THE PROPERTY OF
ROCKWELL AUTOMATION, INC.
OR ITS SUBSIDIARIES AND MAY NOT BE COPIED,
USED OR DISCLOSED FOR ANY PURPOSE
EXCEPT AS AUTHORIZED IN WRITING BY
ROCKWELL AUTOMATION, INC.
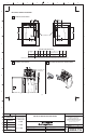
Enclosure without Handle Cutout
1
To make slot drill (3) 1/2" diameter holes and remove burrs
Top Handle Hole
Top Handle Hole
Locate Handle
Right Hand Flange
Enclosure Dimensions
Left Hand Flange
(2) .265 Dia. Holes
Drill Handle Holes
B
C
A
C
B
A
2
F
G
H
J
H
(5)
● Enclosures with a Flange Thickness less than 3/16" use dimensions below to install disconnect handle.
● Enclosures with a Flange Thickness 3/16" and greater use dimensions in alternate Mounting Kit 1494V-H3 to install disconnect
handle.
● Multi-Door Enclosures may require the need for a more rigid flange / mounting plate system, such as a Channel Support Kit. Use
dimensions in Channel Support Kit 1494V-H15, if handle is mounted on top of the channel.
F
4 - 11/16"
4 - 11/16"
4 - 11/16"
G
1 - 9/16"
1 - 9/16"
1 - 9/16"
H
1"
1"
1"
J
7/8"
7/8"
7/8"
1 - 1/16"
C
(max)
1 - 1/16"
1 - 1/16"
B
(min)
1 - 1/8"
1 - 1/8"
1 - 1/8"
A
(min)
4 - 5/8"
6 - 1/16"
10 - 1/8"
NEMA
SIZE
30A, 60A
200A
100A
6 1021282
5 17
- - - - - - -