Instruction Manual
Table Of Contents

1397 Enhanced Field Supply Card8
1
397-5.24 March, 2005
— Front —
100-150
HP/230V Drives
200-300
HP/460V Drives
— Inside Right Side Panel —
400-600
HP/460V Drives
— Top —
40-75
HP/230V Drives
75-150
HP/460V Drives
— Top —
1.5-30
HP/230V Drives
3-60
HP/460V Drives
TORQUE
14-10GA 35 LB.-IN
.
0 GA 48 LB.-IN.
SPEC
GND
DANGER
CIRCUIT BREAKER DOES NOT DISCONNECT INCOMING A0
LINE POWER IT ONLY PROVIDES DC FAULT PROTECTION.
LE DISCONECTEUR NE COUPTE PAS L'AUTOMENTATION DU SPOTEUR IL NES
SERT QUE A ASSURER UNE PROTECTION CONTRE LES DESFAULTS DC.
810903-2424
!
DANGER
RISK OF ELECTRICAL SHOCK. DISCONNECT INPUT
POWER BEFORE SERVICING EQUIPMENT.
P/N 33145
6FU 7FU
8FU
6FU 7FU
8FU
6FU 7FU
8FU
A
B
C
581
583
582
X1
X2
H1 H2
F2/35
CT
LINE
F1/37
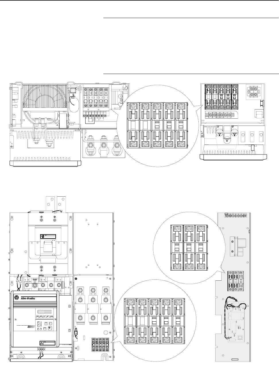
❏ 9 Replace fuses 6FU, 7FU & 8FU with the (3) UL class
CC/600V/25A fuses included with the kit.
Locate the replacement fuse table on the back of the carrier.
Attach one of the adhesive fuse rating labels (P/N 179540) over
the 600V 15A designations as shown in the illustration.
Installation, Cont’d