Instruction Manual
Table Of Contents

1397 Enhanced Field Supply Card6
1
397-5.24 March, 2005
1.5-30 HP/230V Drive
s
3-60 HP/460V Drives
400-600
HP/460V Drives
40-75
HP/230V Drive
s
75-150 HP/460V Drive
s
1
00-150 HP/230V Drives
2
00-300 HP/460V Drives
Enhanced Field Supply Card
A
B
C
581
583
582
X1
X2
H1 H2
F2/35
CT
LINE
F1/37
P4
P4
P4
A
B
C
581
583
582
X1
X2
H1 H2
F2/35
CT
LINE
F1/37
P4
P4
P4
Enhanced
Field Supply
Card
A
B
C
581
583
582
X1
X2
H1 H2
F2/35
CT
LINE
F1/37
P4
P4
P4
582
F2/35
583
581
F1/37
A
B
C
581
583
582
X1
X2
H1 H2
F2/35
CT
LINE
F1/37
P4
P4
P4
582
F2/35
583
581
F1/37
A
B
C
581
583
582
X1
X2
H1 H2
F2/35
CT
LINE
F1/37
P4
P4
P4
A
B
C
581
583
582
X1
X2
H1 H2
F2/35
CT
LINE
F1/37
P4
P4
P4
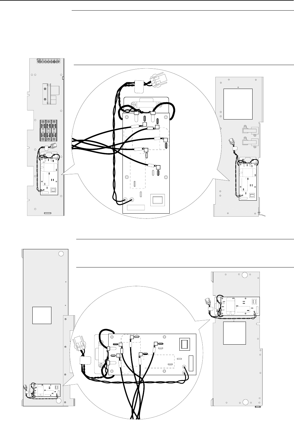
❏ 6 Unplug the (5) fast-on connectors from the Fixed or Regulated Field Supply Card.
• For the Fixed Field Supply, unplug the P4 connector from the Power Interface
Board to free the card.
• For the Regulated Field Supply, unplug the Regulated Field Supply Cable
assembly at Regulator Board Connector J25 to route the cable back through
the carrier door.
Installation, Cont’d
Inside
Right Side Panel
❏ 7 Remove the (4) retaining screws from the back of the Enhanced Field Supply
Card. Use these same (4) screws to install the Enhanced Field Supply card in
the Fixed or Regulated Field Supply Card’s old location.