Instruction Manual
Table Of Contents

1397 Enhanced Field Supply Card
3
1397-5.24 March, 2005
Captive
Carrier
Screw
1
.5-30 HP/230V and 3-60HP/460V Drive
s
with Carrier Door Closed
GRD
A1
45
P4
P4
P4
S4
S4
S4
181 182
183
40-75
HP/230V and 75-150
HP/460V Drives
with Auxiliary Panel Cover
Retaining
Screw
Retaining
Screw
Panel
Tab
Panel
Tab
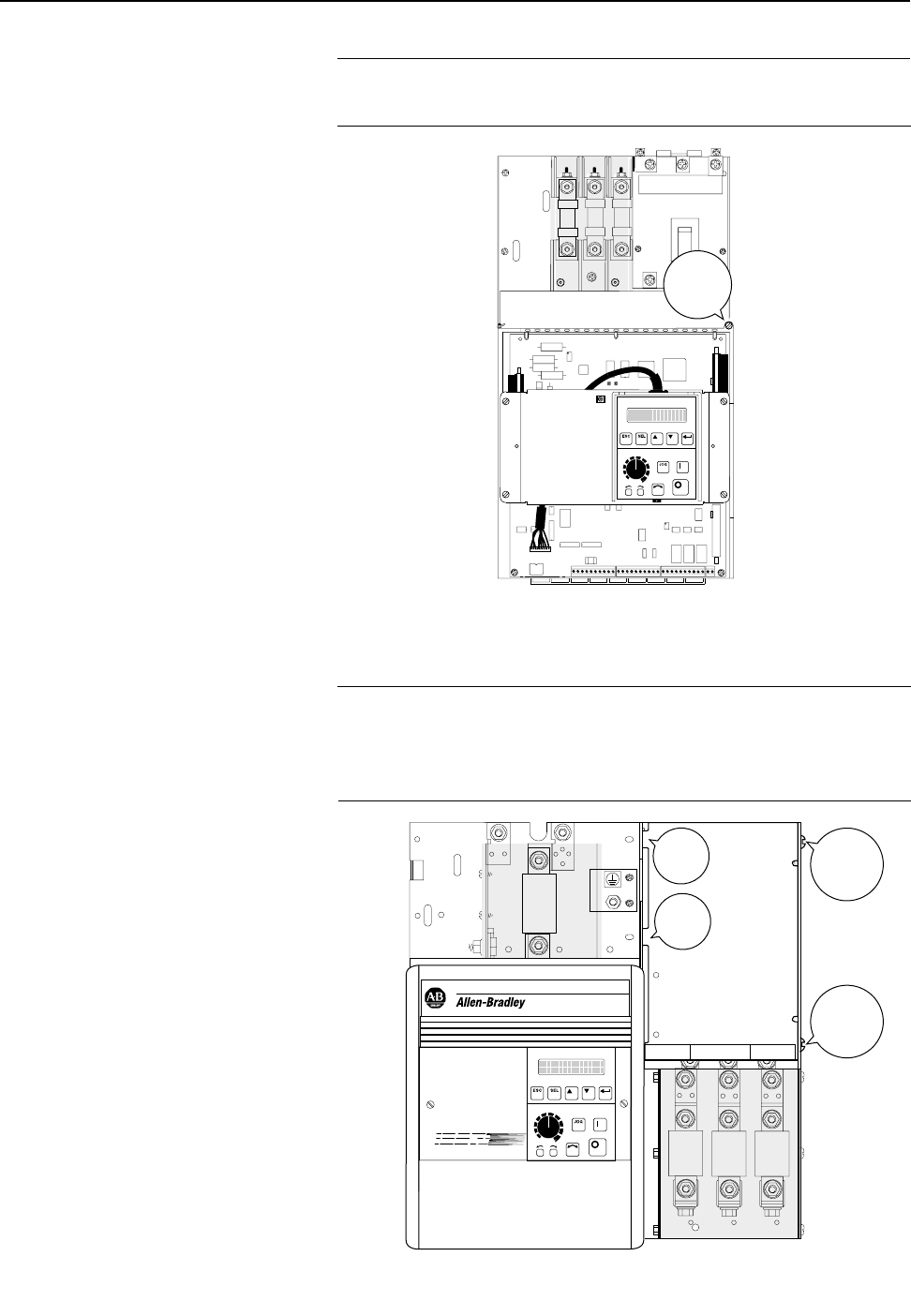
❏ 3 Loosen the captive carrier retaining screw to swing the carrier
door open.
Installation, Cont’d
❏ 4a For 40-75HP/230V drives & 75-150HP/460V drives without
an AC line disconnect, loosen the (2) auxiliary panel cover
retaining screws. To lift out the auxiliary panel, loosen the
screws only enough to allow the panel tabs to slide out.