Manual
Table Of Contents

1397 Inverting Fault Circuit Breaker 3
1397-5.29 September, 1998
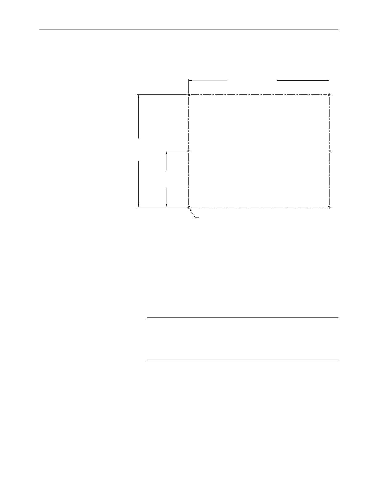
13.32"
[38.3 mm]
10.68"
[271.3 mm]
5.34"
[135.6 mm]
Figure 1.
Inverting Fault Circuit Breaker
Mounting Hole Pattern]
0.213"
[5.4 mm] Dia.
(6) holes
❐
1
Referring to Figure 2, connect the motor armature lead A2 to
Inverting Fault Circuit Breaker terminal MOT. Refer to Figure 9
for the location of the breakers’s MOT terminal.) Terminate the
breaker side of the leads with lugs of the appropriate gauge.
Wiring
The method used to wire the Inverting Fault Circuit Breaker depends
on whether the drive is equipped with dynamic braking and/or a motor
series field. Choose the appropriate wiring procedure for your
application from the following procedures:
If you are using the Inverting Fault Circuit Breaker only (no
dynamic braking and no motor series field):