Owner's manual

1397 300HP AC Line Disconnect
5
1397-5.27 October, 1997
TORQUE
14-10GA 35 LB.-IN
.
0 GA 48 LB.-IN.
SPEC
GND
!
DANGER
RISK OF ELECTRICAL SHOCK. DISCONNECT INPUT
POWER BEFORE SERVICING EQUIPMENT.
P/N 33145
DANGER
CIRCUIT BREAKER DOES NOT DISCONNECT INCOMING A0
LINE POWER IT ONLY PROVIDES DC FAULT PROTECTION.
LE DISCONECTEUR NE COUPTE PAS L'AUTOMENTATION DU SPOTEUR IL NES
SERT QUE A ASSURER UNE PROTECTION CONTRE LES DESFAULTS DC.
810903-2424
283
282
281
4FU 5FU 6FU 7FU 8FU
183
182181
RISK OF SHOCK
REPLACE AFTER
SERVICING
DANGER
!
Plastic
Line Fuse
Cover
81 82
83
ON
OFF
Line Side
Label
M12 Nut
and Washer
Removed
Previously
M12 Nut
and Washer
Removed
Previously
M12 Nut
and Washer
Removed
Previously
7/16"
Flat Washer
7/16" Split
Lockwasher
7/16" x 1" Bolt
— (6) Places —
❐
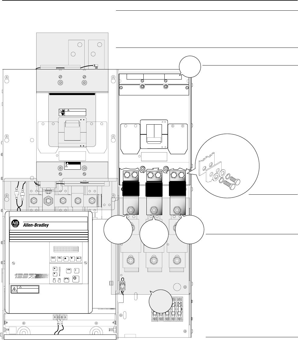
7a
Remove the disconnect’s bottom lug cover by loosening the (2)
screws holding it in place. Put one split lockwasher and one flat
washer onto each of the bolts used to fasten the bus bars to the
disconnect.
DS300 Installation
❐
7b
Attach one bus bar to the
drive’s left line fuse connector
and the disconnect’s left load
connector. One of the holes on
the bus bar attaches to the lug
for the line fuse connector. Use
(2) of the bolt, lockwasher and
flat washer 7/16" assemblies
❐
7c
Fasten the bus bars to the
drive’s line fuse connectors
with the M12 nuts and
washers removed in
Step 1
.
• Tighten the bolts fastening
the bus bars to the
disconnect to 40N-m
(350lb.-in.).
• Tighten the nuts fastening
the bus bars to the line fuse
connectors to 40N-m
(350lb.-in.).
to attach the bus
bar to the
disconnect.
Repeat this
procedure to
attach the
remaining
bus bars.