Owner's manual

1397 300HP AC Line Disconnect
4
1397-5.27 October, 1997
TORQUE
14-10GA 35 LB.-IN
.
0 GA 48 LB.-IN.
SPEC
GND
!
DANGER
RISK OF ELECTRICAL SHOCK. DISCONNECT INPUT
POWER BEFORE SERVICING EQUIPMENT.
P/N 33145
DANGER
CIRCUIT BREAKER DOES NOT DISCONNECT INCOMING A0
LINE POWER IT ONLY PROVIDES DC FAULT PROTECTION.
LE DISCONECTEUR NE COUPTE PAS L'AUTOMENTATION DU SPOTEUR IL NES
SERT QUE A ASSURER UNE PROTECTION CONTRE LES DESFAULTS DC.
810903-2424
283
282
281
4FU 5FU 6FU 7FU 8FU
183
182181
RISK OF SHOCK
REPLACE AFTER
SERVICING
DANGER
!
Plastic
Line Fuse
Cover
ON
81
82
83
OFF
M10 Nut
and Washer
Removed
Previously
M10 Nut
and Washer
Removed
Previously
M10 Nut
and Washer
Removed
Previously
Left
Bus Bar
Right
Bus Bar
Center
Bus Bar
Line Side
Label
3/8"
Flat Washer
3/8" Split
Lockwasher
3/8" x 3/4" Bolt
— (3) Places —
❐
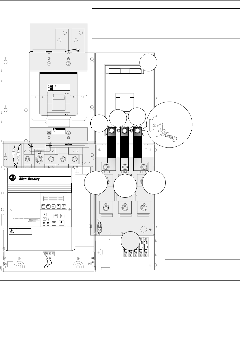
7a
Remove the disconnect’s bottom lug cover by loosening the (2)
screws holding it in place. Put one split lockwasher and one flat
washer onto each of the bolts used to fasten the bus bars to the
disconnect.
DS200 Installation
❐
7b
Attach one angled bus bar to
the drive’s left line fuse
connector and the
disconnect’s left load
connector. The leg of the bus
bar attaches to the
disconnect. The foot of
the bus bar faces left
and it’s bolt hole
slips over the lug
for the line fuse
connector. Use
one of the bolt,
lockwasher and flat
washer 3/8" assemblies
to fasten the bus bar to the
disconnect
❐
7c
Attach the straight bus bar to
the drive’s center line fuse
connector and the
disconnect’s center
connector. Use one of the
bolt, lockwasher and flat
washer 3/8" assemblies to
fasten the bus bar to the
disconnect.
❐
7d
Attach the remaining angled bus bar to the drive’s right line fuse connector and the disconnect’s right load
connector. The leg of the bus bar attaches to the disconnect. The foot of the bus bar faces right and its bolt
hole slips over the lug for the line fuse connector. Use one of the bolt, lockwasher, and flat washer 3/8"
assemblies to fasten the bus bar to the disconnect.
❐
7e
Fasten the bus bars to the drive’s line fuse connectors with the M10 nuts and washers removed in
Step 1
.
• Tighten the bolts fastening the bus bars to the disconnect to 23N-m (200lb.-in.).
• Tighten the nuts fastening the bus bars to the line fuse connectors to 23N-m (200lb.-in.).