Manual

1336 FORCE™ To PowerFlex® 700S Phase II AC Drive Conversion Guide
49
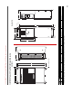
1336 FORCE Frame F (NEMA UL/Type 1, IP20) to PowerFlex 700S Frame 10 MCC Style Enclosure (NEMA UL/Type 1, IP21) Dimensions
)
Drive Frame
Dimensions
(1)
mm (in.)
(1)
Refer to drive User Manuals for location and size of motor lead knockouts.
Weight kg (lbs.)
A B BB C CC Drive (400V Class) Drive (600V Class) Drive & Packaging (400V Class) Drive & Packaging (600V Class)
1336T F 762.0 (30.0) 2286.0 (90.0) na 635.0 (25.0) 672.9 (26.5) na na 415 (915) na
700S 10 635.0 (25.0) 2286.0 (90.0) 2349.5 (92.5) 635.0 (25.0) na 454 (1100) 449 (990) 522 (1150) 480 (1058)
Removeable
Lifting Angle
C
B
A
BB
Powerful Performance, Flexible Control.
PowerFlex 700S1336 FORCE
B
A
C
CC