Operation Manual

20
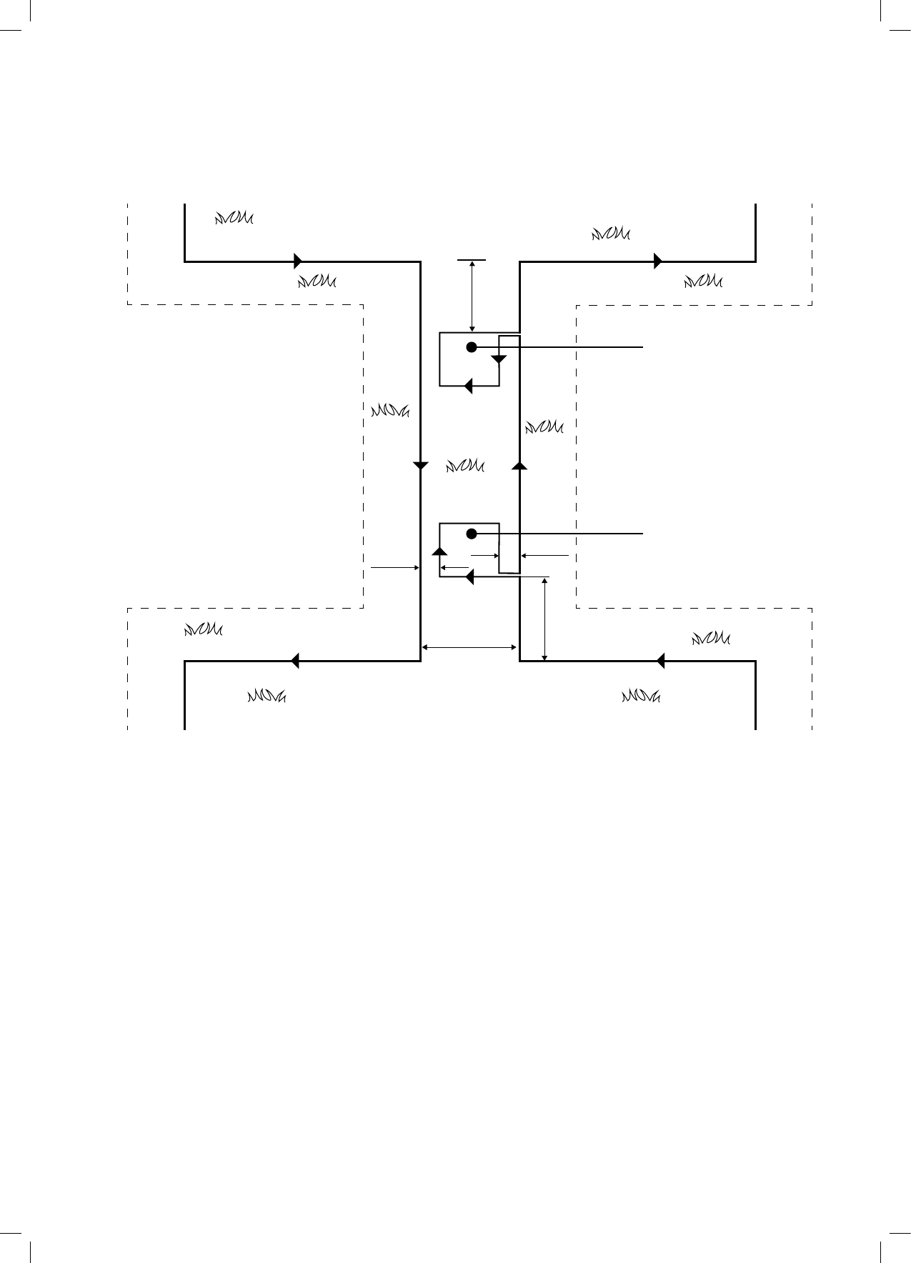
4.3.3 Een smalle doorgang instellen
Een smalle passage wordt gedeî‚¿nieerd door een pad dat twee zones van het gazon verbindt. Door het volgen van
de perimeterdraad rijdt Robomow tussen de basiszone en de subzone. Terwijl hij een zone maait, gaat het niet
naar de andere.
Om een smalle doorgang in te stellen volgt u de instructies die in de onderstaande illustratie staan:
Sub-Zone
Main-Zone
50cm
50cm
50cm
10cm
10cm
Perimeter Island
30x30cm
Perimeter Island
30x30cm
De bovenstaande installatie maakt het mogelijk dat Robomow langs de draad rijdt om de subone te bereiken.
Echter, tijdens het afzonderlijk maaien van elke zone, zal Robomow niet naar de andere zone overschakelen.
A. Op het punt dat u Robomow wilt laten rijden
in de richting van de subzone begint u de
smalle doorgang in te stellen.
B. 50 cm (20 inch) van af de hoek van de
smalle doorgang, stelt u een perimeter-
eiland (zie 4.2.4) met randen van 30 cm
(12 inch) op een afstand van 10 cm (4
inch) van de perimeter-draad.
C. Ga door draad te leggen in de richting van
de subzone en leg een ander eiland met
dezelfde afmetingen, 50 cm (20 inch) van
de perimeter-draad van de subzone.
D. Na het voltooien van de installatie van de
draad in de subzone, zorgt u ervoor om
10 cm (4 inch) afstand te houden tussen
de draad en de eilanden op de weg terug
naar de hoofdzone.
Hoofdzone
Subzone
Perimeter-eiland
30x30 cm
Perimeter-eiland
30x30 cm










