Patio Heater User Manual

SECTION 6: VENTING
11
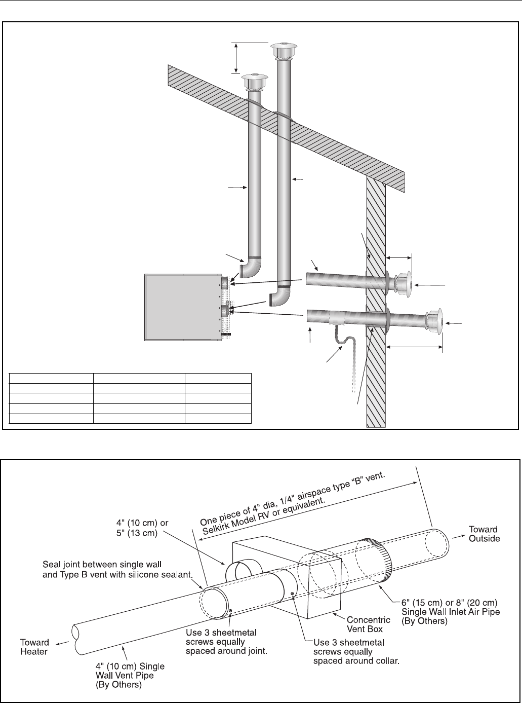
Figure 6: Separated Combustion Heater - Vertical and Horizontal Vent Termination
Figure 7: Concentric Vent Box
Vent
Termination
Listed Thimble through
Combustible Wall
Vent
12" (31 cm)
Minimum from wall
to vent termination.
Air Intake
Condensate
Trap to Drain
(Optional)
12" (31 cm)
Minimum from air inlet to vent
termination (may be horizontal
or vertical clearance).
Air Intake
Termination
Note: Vent supports not shown
Vent
Air Intake*
12" (31 cm)
Minimum from air inlet to vent
termination (may be horizontal
or vertical clearance).
Vertical
Option
Horizontal
Option
90°
Bend
Model Vent Diameter Terminal P/N
UHAS 150 - 400 4" (10 cm) 90502102
Model *Air Intake Diameter Terminal P/N
UHAS 150 - 250 4" (10 cm) 90502102
UHAS 300 - 400 5" (13 cm) 90502105