Tubular Unit Heaters (Low Profile Range) Installation, Operation and Service Manual

UHA LOW PROFILE UNIT HEATER INSTALLATION OPERATION AND SERVICE MANUAL
12
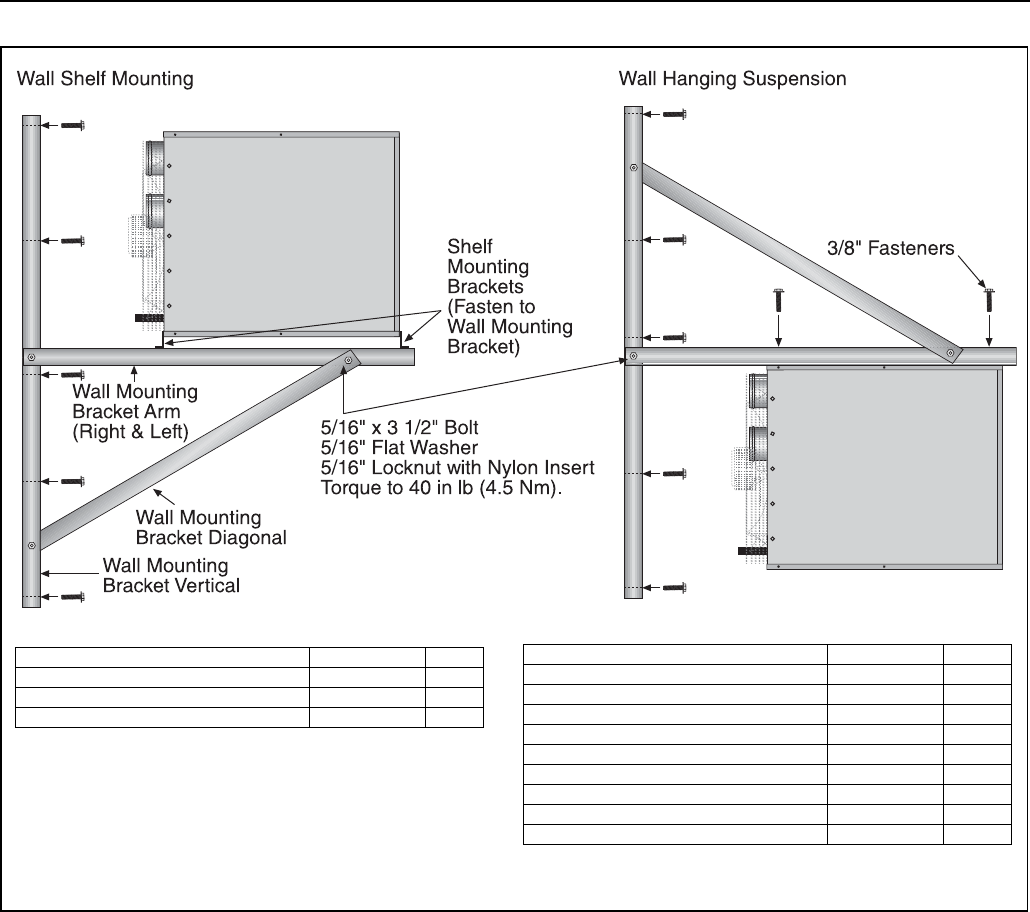
Figure 7: Wall Shelf Mounting and Hanging Suspension
Description Part Number Qty.
Wall Shelf Mounting Bracket Kit 12011002K
Wall Suspension Mounting Bracket Kit 12011001K 1
Shelf Mounting Bracket Kit 12011000K 1
Description Part Number Qty.
Wall Suspension Mounting Bracket Kit 12011001K
Wall Mounting Bracket Arm Left 111WALL1L 1
Wall Mounting Bracket Arm Right 111WALL1R 1
Wall Mounting Bracket Vertical 111WAL2 2
Wall Mounting Bracket Diagonal 111WAL3 2
5/16" x 3 1/2" Bolt 97213925 6
5/16" Lock Nut with Nylon Insert 92114000 6
5/16" Flat Washer 95211600 6
5/16" Lockwasher 96411600 6
Hardware provided to construct mounting bracket assembly only.