Tubular Unit Heaters (Low Profile Range) Installation, Operation and Service Manual

SECTION 14: REPLACEMENT PARTS
43
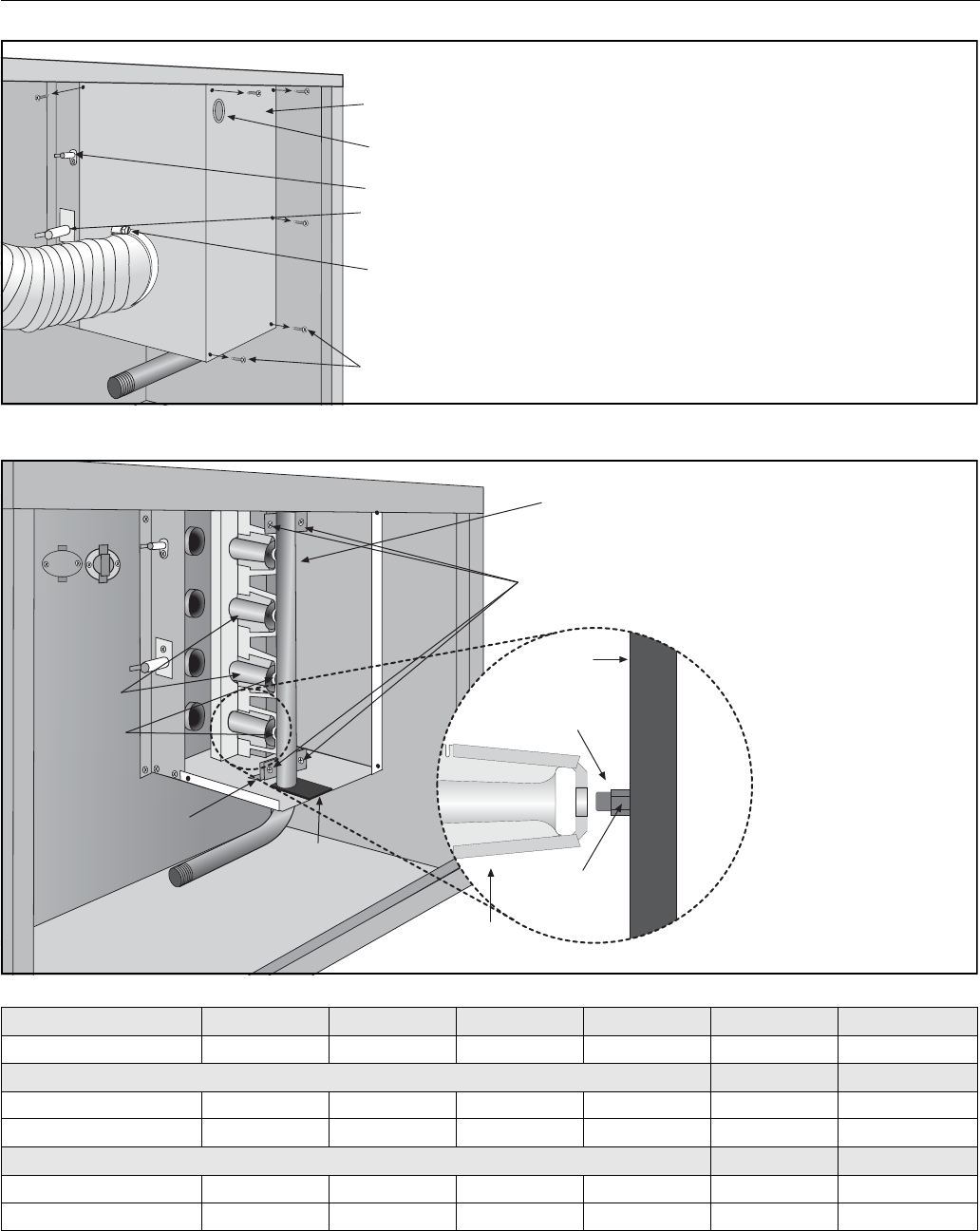
14.2 Burner Compartment
14.2.1 Burner Injectors
Remove flexible
air duct from spigot
Viewing port
for flame probe
Flame Probe
Burner
Compartment
Cover
Ignition Electrode
Remove screws and
pull off burner cover
NOTE: Separated combustion
model shown.
The burner compartment is a sealed
compartment. Following any work,
re-seal the compartment with the
gas pipe rubber seal fully in place
and all screws fitted and tight.
.
MODEL UHA[X][S] 30 UHA[X][S] 45 UHA[X][S] 60 UHA[X][S] 75 UHA[X][S] 100 UHA[X][S] 125
Orifice Quantity 2 3 4 5 6 7
Natural Gas (G20)
Orifice Marking 49 49 49 49 46 46
P/N 91930049 91930049 91930049 91930049 91930046 91930046
Propane (G31)
Orifice Marking 56 56 56 1. 1 5 m m 1. 2 5 m m 1. 2 5 m m
P/N 91930056 91930056 91930056 91930115 91930125 91930125
Remove manifold
screws and pull
out manifold
Manifold
Inshot
Burners
Orifices
Manifold
Mounting
Bracket
Grommet
Unscrew
Orifices
Manifold
Marking
Folded
Hem
Ensure gas tight fitting of
injectors.
Ensure correct
alignment
with burners.
Ensure all pipe joints are
gas tight.










