Tubular Unit Heaters (Low Profile Range) Installation, Operation and Service Manual

SECTION 6: VENTING
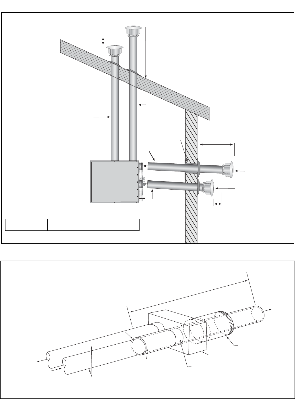
19
Figure 12: Separated Combustion Heater - Vertical and Horizontal Vent Termination
Figure 13: Concentric Vent Box
Vent
Termination
Listed Thimble
through
Combustible Wall
4" (10 cm)
Diameter Vent
12" (31 cm)
Minimum from wall
to vent termination.
4" (10 cm)
Diameter
Air Intake
12" (31 cm)
Minimum from air inlet to vent
termination (may be horizontal
or vertical clearance).
Air Intake
Termination
4"
(10 cm)
Diameter
Vent
4" (10 cm) Diameter
Air Intake
12" (31 cm)
Minimum from air inlet to vent
termination (may be horizontal
or vertical clearance).
Vertical
Option
Horizontal
Option
12" (31 cm)
Minimum from wall
to vent termination.
NOTE: Vent supports not
shown.
Model Air Intake & Vent Diameter Part Number
UHA[X]S 30 - 125 4" (10 cm) 90502102
4" (10 cm) Single
Wall Vent Pipe
(By Others)
Seal joint between single wall
and Type B vent with silicone sealant.
Use 3 sheetmetal
screws equally
spaced around joint.
Use 3 sheetmetal
screws equally
spaced around collar.
Concentric
Vent Box
6" (15 cm) Single
Wall Inlet Air Pipe
(By Others)
One piece of 4" (10 cm) diameter, 1/4" (6 cm) airspace type
“B” vent. Selkirk Model RV or equivalent. (By others)
Combustion Air
to Heater
Toward
Outside
Exhaust
from Heater










