Installation Guide

7
© 2017 Robern, Inc. 701 N. Wilson Ave. Bristol, PA 19007 U.S.A.
800.877.2376 www.robern.com
Installation instructions
Part no. 209-1277-rB rev. 09/25/17
Vitality Rectangular / Square
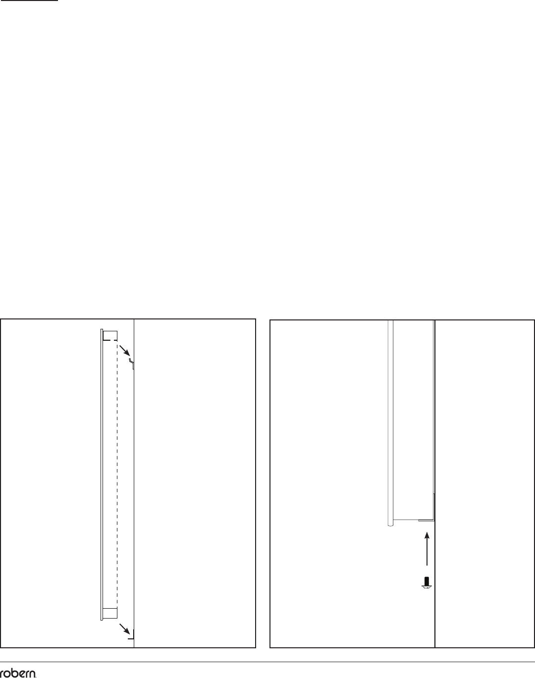
STEP 3 - MIRROR INSTALLATION
1. Plug mirror into electrical outlet installed in STEP 1 - ELECTRICAL CONNECTION
2. Make sure to dress wires so they are not pinched or damaged.
3. Lift mirror and carefully lower onto cleats and adjust horizontally.
4. Using screws provided, align lower bracket and attach to mirror.
1 2