Installation Guide

4
© 2017 Robern, Inc. 701 N. Wilson Ave. Bristol, PA 19007 U.S.A.
800.877.2376 www.robern.com
Installation instructions
Part no. 209-1277-rB rev. 09/25/17
Vitality Rectangular / Square
STEP 1 - ELECTRICAL CONNECTION
Refer to the Dimmer recommendations on page 2.
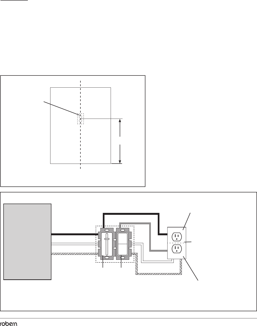
1. The required outlet should be located as shown. (see gure 1)
2. Make electrical connections as shown. (see gure 2)
1
C
L
17-1/2"
(445 mm)
Outlet
Location
2
*Make proper connections according to the Dimmer’s Manufacturer Instructions. For on/off
(no dimmer) operation a standard wall switch may be substituted in place of the dimmer.
20A GFI Circuit
Black (L)
Black (L1)
Red (L2)
White (N)
White (N)
Ground (G)
Ground (G)
Dimmer*
Light circuit
connection
Defogger
circuit
connection
Switch
Note: Outlet "line" connection for
top and bottom receptacles must
be electrically isolated from each
other. Receptacles will be controlled
independently.