Installation Guide

15
© 2017 Robern, Inc. 701 N. Wilson Ave. Bristol, PA 19007 U.S.A.
800.877.2376 www.robern.com
Instructions d'installation / Instrucciones de instalación
No. de pièce / Pieza n.° 209-1277-rB rev. 09/25/17
Vitality Rectangulaire / Carré Vitality rectangular / cuadrado
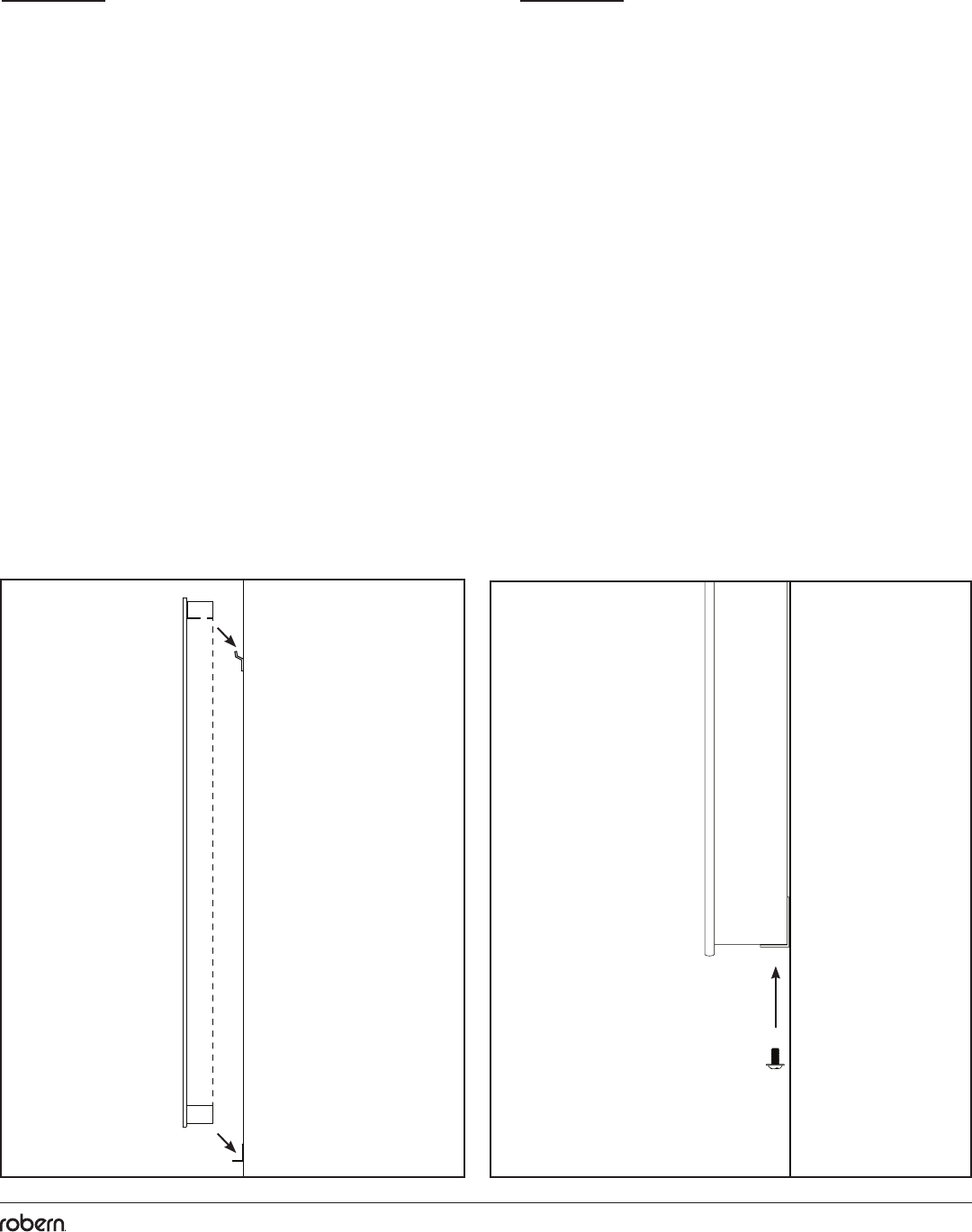
ÉTAPE 3 - INSTALLATION DU
MIROIR
PASO 3 - INSTALACIÓN DEL
ESPEJO
1 2
1. Brancher le miroir dans la pris électrique installée à
L’ÉTAPE 1 - CONNEXION ÉLECTRIQUE
2. S’assurer d’acheminer les ls de manière à ce qu’ils ne
soient pas pincés ou endommagés.
3. Lever le miroir, puis l'abaisser avec précaution sur les
taquets et ajuster horizontalement.
4. À l'aide des vis fournies, aligner le support inférieur et
l'attacher sur le miroir.
1. Conecte el espejo al tomacorriente instalado en el
PASO 1 - CONEXIÓN ELÉCTRICA.
2. Asegúrese de pasar los alambres de forma que no queden
pellizcados ni sufran daños.
3. Levante el espejo y con cuidado bájelo sobre las tablillas de
sujeción y ajústelo horizontalmente.
4. Con los tornillos que incluimos, alinee la ménsula inferior y
únela al espejo.