Installation Guide

12
© 2017 Robern, Inc. 701 N. Wilson Ave. Bristol, PA 19007 U.S.A.
800.877.2376 www.robern.com
Instructions d'installation / Instrucciones de instalación
No. de pièce / Pieza n.° 209-1277-rB rev. 09/25/17
Vitality Rectangulaire / Carré Vitality rectangular / cuadrado
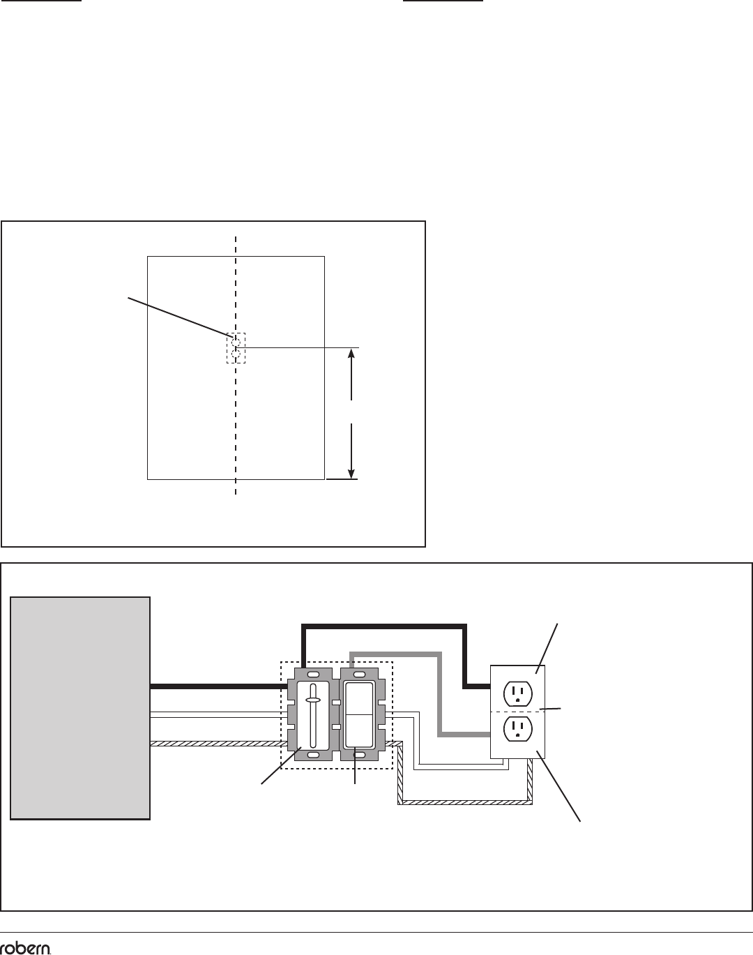
ÉTAPE 1 - CONNEXION ÉLECTRIQUE PASO 1 - CONEXIÓN ELÉCTRICA
Se reporter aux recommandations relatives au gradateur à la page 10.
1. La prise requise doit être positionnée comme sur l’illustration. (voir
la gure 1)
2. Effectuer les connexions électriques comme sur l'illustration. (voir la
gure 2)
Consulte las recomendaciones de atenuador en la página 10.
1. El tomacorriente requerido debe ubicarse como se muestra. (Vea la
gura 1.)
2. Haga las conexiones eléctricas como se muestra. (Vea la gura 2.)
L
1
C
L
17-1/2"
(445 mm)
Outlet
Location
2
Rouge / Rojo (L2)
Connexion de circuit
d’éclairage /
Conexión de circuito de luz
Remarque: La connexion de "ligne"
pour les prises supérieure et
inférieure doit être isolée entre les
deux. Les prises seront contrôlées
indépendamment. /
Nota: La conexión de línea del
tomacorriente para los receptáculos
superior e inferior debe estar
eléctricamente aislada una de
la otra. Los receptáculos se
controlarán de forma independiente.
*Effectuer les connexions appropriées selon les
instructions du fabricant du gradateur. /
*Haga las conexiones adecuadas de acuerdo con
las instrucciones del fabricante del atenuador
Circuit GFI 20 A /
Circuito GFI de 20A
Noir / Negro (L)
Blanc / Blanco (N)
Terre / Tierra (G)
Gradateur* /
Atenuador*
Interrupteur /
Interruptor
Noir / Negro (L1)
Blanc /
Blanco (N)
Terre / Tierra (G)
Connexion de circuit de désembueur /
Conexión de circuito de desempañador