User Manual

4 • 65-2516 RK Oxygen Transmitt er
Junction Box
Use the juncti on box to install th e oxygen transmitter at a mounting site that is remote
from the controller. The junction box also protects the amplifier and wiring connections
made to the amplifier. Use the two 3/4 in. conduit hubs to mount the detector to the
junction box (bottom hub) and connect w iring from the amplifier to the controller (top
hub).
NOTE: The oxygen detector and amplifier are factory-mounted to the junction bo x.
Use the juncti on box’s two moun ting holes to mou nt the oxygen transmitter to a vertical
surface at the monitoring site. Use the cover on the front of the junctio n box to access the
interior of the junction box.
Installation
This section d e scribe s procedures to mount the oxygen tran smitter in the monitoring
environment and wire the transmitter to a gas monitoring controller.
Mounting the Oxygen Transmitter
1. Select a mounting site that is repres entative of the monitoring environment. Consider
the following when you select the mounting site.
• Select a site where the transmitter is not likely to be bumped or disturbed . Make
sure there is sufficient room to perform s tart- up, maintenance, and calibra tion
procedures.
• Select a site that is at normal breathing level.
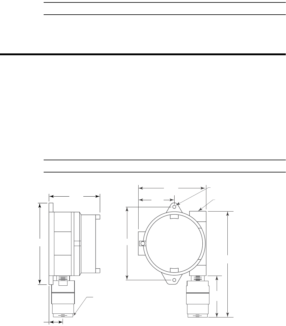
CAUTION: Moun t the oxygen transmitter with t he detector fac i ng down (see Figure 2).
Figure 2: Mounting the Oxygen Transmitter
3.94
6.10
1
.10
.25 Dia. Mountin
g
Hole, 2X
3/4 NPT
Conduit Hub
8.5 max
2.75
5.20
1 1/2-20 For
Calibration Cup
3.2
max
5.46










