Data Sheet

Kleingehäuse
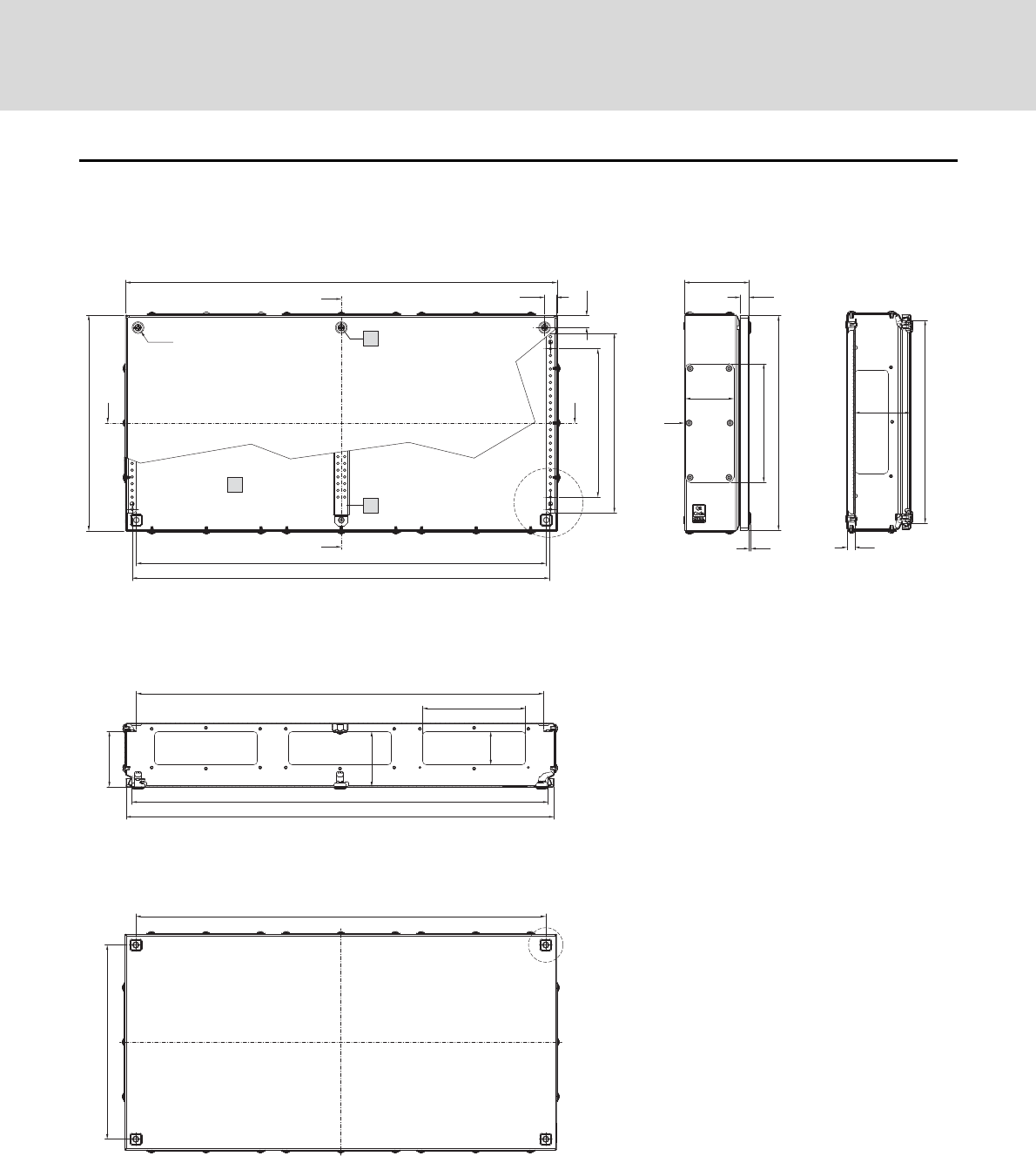
4 Kleingehäuse KX/Technik im Detail
Kleingehäuse KX, Stahlblech
Klemmenkästen KX
T3
T3
T7
B2
B3
B4
B7
B6
H6
Y
T1
O
H2
M
16.6
3
D
H1
H4
H5
1
2
B1
B4
B5
22.2
B
B
A
A
Ø 22
3
X
22.2
T3
H3
14
Schnitt B – B
Schnitt A – A
Ansicht D
Verschluss mittig bei B1 > 500 mm
Nur bei KX 1513.000
Innenansicht