Data Sheet

Kleingehäuse
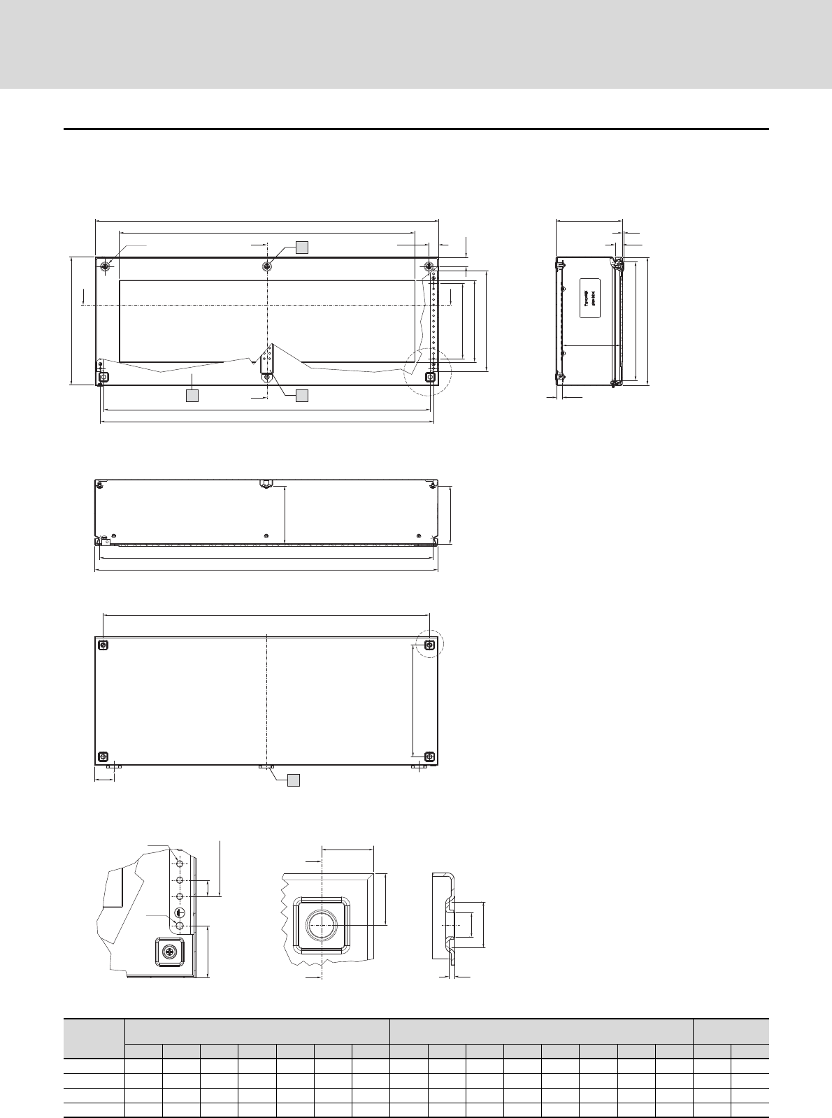
8 Kleingehäuse KX/Technik im Detail
Kleingehäuse KX, Stahlblech
Bus-Gehäuse KX
40
12.5
Ø 4.6
N x 12.5 = H4
M6
4
B6
H6
Y
45
H3
H2
T1
T3
3
16.6
14
1
23
B1
B10
B4
B5
22.2
A
A
Ø 22
B B
H1
X
22.2
H10
H4
H5
20
20
C
C
□ 17.7
Ø 9.25
2
Einzelheit Y Schnitt C – C
B3
B2
T3
T3
Schnitt A – A
Schnitt B – B
Best.-Nr.
KX
Breitenmaße
mm
Höhenmaße
mm
Tiefenmaße
mm
B1 B2 B3 B4 B5 B6 B10 H1 H2 H3 H4 H5 H6 H10 N T1 T3
1610.000 400 398 377,7 359,5 375,5 360 287,5 200 198 176 75 133 160 90,5 6 155 135,2
1611.000 400 398 377,7 359,5 375,5 360 287,5 300 298 276 175 233 260 190,5 14 155 135,2
1612.000 600 598 577,7 559,5 575,5 560 487,5 300 298 276 175 233 260 190,5 14 155 135,2
1613.000 800 798 777,7 759,5 775,5 760 687,5 300 298 276 175 233 260 190,5 14 155 135,2
Einzelheit X
Schrank
B1 = Gehäusebreite (Gesamtbreite)
B2 = Deckelbreite
B3 = Lichte Breite Gehäuseöffnung
B4 = Lichte Breite zwischen L-Winkeln
B5 = Achsabstand der Montagebohrungen in
den L-Winkeln
B6 = Befestigungsabstand Gehäuse
B10 = Sichtscheibenbreite
H1 = Gehäusehöhe (Gesamthöhe)
H2 = Deckelhöhe
H3 = Lichte Höhe Gehäuseöffnung
H4 = Gesamthöhe 12,5 mm-Lochraster
H5 = Lichtes Maß L-Winkel
H6 = Befestigungsabstand Gehäuse
H10 = Sichtscheibenhöhe
N = Anzahl 12,5 mm-Lochraster
T1 = Gesamttiefe
T3 = Einbautiefe (Abstand Deckelinnenseite
Sichtscheibe zum L-Winkel bzw. zur
Mittenschiene)
Verschluss mittig bei B1 > 500 mm
Nur bei KX 1613.000
Innenansicht
Scharnier mittig bei B1 > 600 mm