Data Sheet

Kleingehäuse
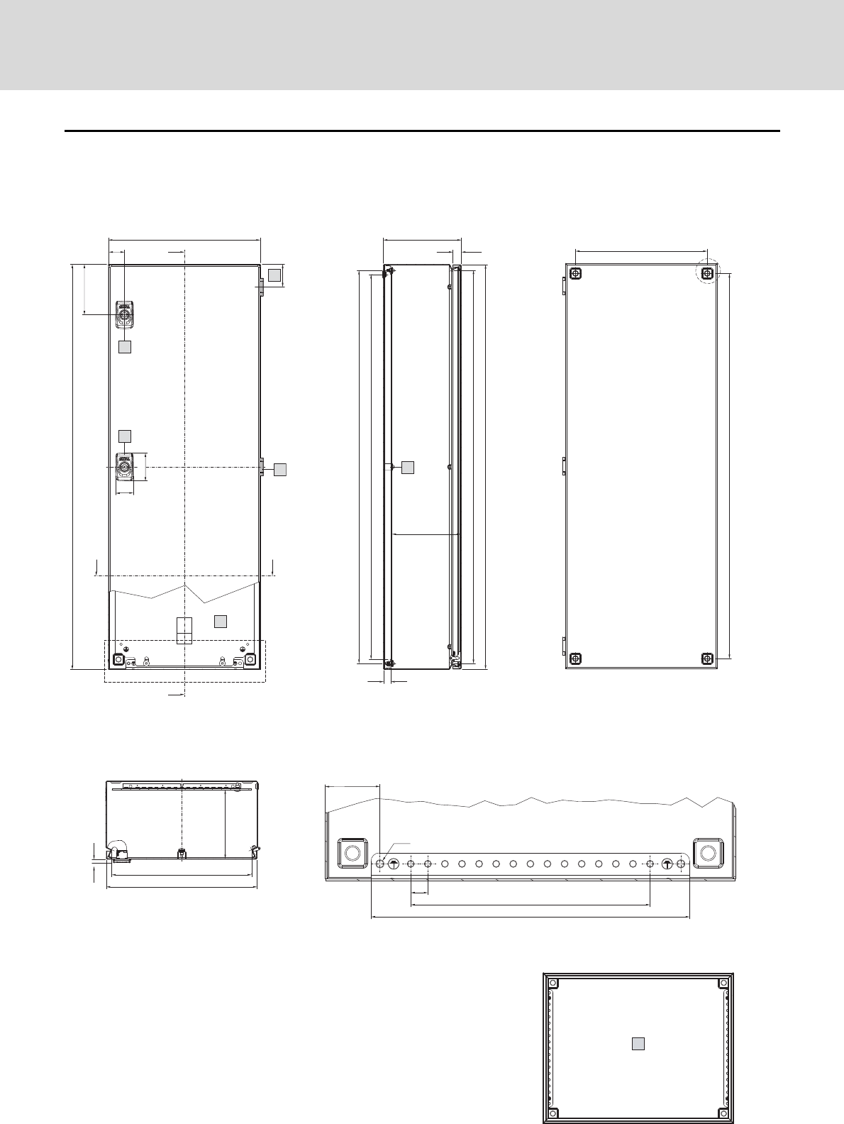
6 Kleingehäuse KX/Technik im Detail
Kleingehäuse KX, Stahlblech
E-Box KX
B3
B2
T3
7
T1
T3
H8
H7
H3
H2
14
16.6
5
B1
H1
30.8
100
B B
A
A
X
3
1
2
4
7
35.3
55.1
B6
H6
Y
Schnitt A – A
Schnitt B – B Einzelheit X
Ein Vorreiber mittig bei H1 ≤ 400 mm
Zwei Vorreiber bei H1 > 400 mm
Innenansicht
Scharnier mittig bei H1 > 600 mm
Bolzen mittig nur bei H1 = 800 mm
Löcher mittig nur bei H1 = 800 mm
33 mm bei H1 = 150 mm
44 mm bei H1 > 150 mm
3
KX 1576.000
Innenausbau um 90° gedreht
(L-Winkel und Montageplatten-
Befestigung links und rechts)