Data Sheet
Table Of Contents

Kleingehäuse
5Kleingehäuse KX/Technik im Detail
Kleingehäuse KX, Stahlblech
Klemmenkästen KX
Best.-Nr.
KX
Breitenmaße mm Höhenmaße mm Tiefenmaße mm Flanschplatte
B1 B2 B3 B4 B5 B6 B7 H1 H2 H3 H4 H5 H6 N T1 T3 T7 M O Anzahl
1500.000 150 148 127,7 109,5 125,5 110 – 150 148 127,7 25 83 110 2 120 103,5 – – – –
1501.000 300 298 277,7 259,5 275,5 260 – 150 148 127,7 25 83 110 2 120 103,5 – – – –
1502.000 200 198 177,7 159,5 175,5 160 – 200 198 177,7 75 133 160 6 120 103,5 – – – –
1503.000 300 298 277,7 259,5 275,5 260 – 200 198 177,7 75 133 160 6 120 103,5 – – – –
1504.000 400 398 377,7 359,5 375,5 360 – 200 198 177,7 75 133 160 6 120 103,5 – – – –
1505.000 500 498 477,7 459,5 475,5 460 – 200 198 177,7 75 133 160 6 120 103,5 – – – –
1506.000 600 598 577,7 559,5 575,5 560 – 200 198 177,7 75 133 160 6 120 103,5 – – – –
1507.000 300 298 277,7 259,5 275,5 260 – 300 298 277,7 175 233 260 14 120 103,5 – – – –
1508.000 400 398 377,7 359,5 375,5 360 – 300 298 277,7 175 233 260 14 120 103,5 – – – –
1509.000 500 498 477,7 459,5 475,5 460 – 300 298 277,7 175 233 260 14 120 103,5 – – – –
1510.000 600 598 577,7 559,5 575,5 560 – 300 298 277,7 175 233 260 14 120 103,5 – – – –
1511.000 400 398 377,7 359,5 375,5 360 – 400 398 377,7 275 333 360 22 120 103,5 – – – –
1512.000 600 598 577,7 559,5 575,5 560 – 400 398 377,7 275 333 360 22 120 103,5 – – – –
1513.000 800 798 777,7 759,5 775,5 760 – 400 398 377,7 275 333 360 22 120 103,5 – – – –
1514.000 150 148 127,7 109,5 125,5 110 – 150 148 127,7 25 83 110 2 80 63,5 – – – –
1515.000 300 298 277,7 259,5 275,5 260 – 150 148 127,7 25 83 110 2 80 63,5 – – – –
1516.000 200 198 177,7 159,5 175,5 160 – 200 198 177,7 75 133 160 6 80 63,5 – – – –
1517.000 300 298 277,7 259,5 275,5 260 – 200 198 177,7 75 133 160 6 80 63,5 – – – –
1518.000 400 398 377,7 359,5 375,5 360 – 200 198 177,7 75 133 160 6 80 63,5 – – – –
1527.000 800 798 777,7 759,5 775,5 760 – 200 198 177,7 75 133 160 6 120 103,5 – – – –
1528.000 200 198 177,7 159,5 175,5 160 – 150 148 127,7 25 83 110 2 80 63,5 – – – –
1529.000 200 198 177,7 159,5 175,5 160 – 150 148 127,7 25 83 110 2 120 103,5 – – – –
1530.000 300 298 277,7 259,5 275,5 260 192 150 148 127,7 25 83 110 2 120 103,5 62 220 72 2
1531.000 300 298 277,7 259,5 275,5 260 192 200 198 177,7 75 133 160 6 120 103,5 62 220 72 2
1532.000 400 398 377,7 359,5 375,5 360 192 200 198 177,7 75 133 160 6 120 103,5 62 220 72 2
1533.000 500 498 477,7 459,5 475,5 460 192 200 198 177,7 75 133 160 6 120 103,5 62 220 72 4
1535.000 300 298 277,7 259,5 275,5 260 192 300 298 277,7 175 233 260 14 120 103,5 62 220 72 4
1536.000 400 398 377,7 359,5 375,5 360 192 300 298 277,7 175 233 260 14 120 103,5 62 220 72 4
1537.000 500 498 477,7 459,5 475,5 460 192 300 298 277,7 175 233 260 14 120 103,5 62 220 72 6
1538.000 600 598 577,7 559,5 575,5 560 192 300 298 277,7 175 233 260 14 120 103,5 62 220 72 6
1539.000 400 398 377,7 359,5 375,5 360 192 400 398 377,7 275 333 360 22 120 103,5 62 220 72 4
1540.000 600 598 577,7 559,5 575,5 560 192 400 398 377,7 275 333 360 22 120 103,5 62 220 72 6
1541.000 800 798 777,7 759,5 775,5 760 192 400 398 377,7 275 333 360 22 120 103,5 62 220 72 8
1589.000 400 398 377,7 359,5 375,5 360 – 150 148 127,7 25 83 110 2 120 103,5 – – – –
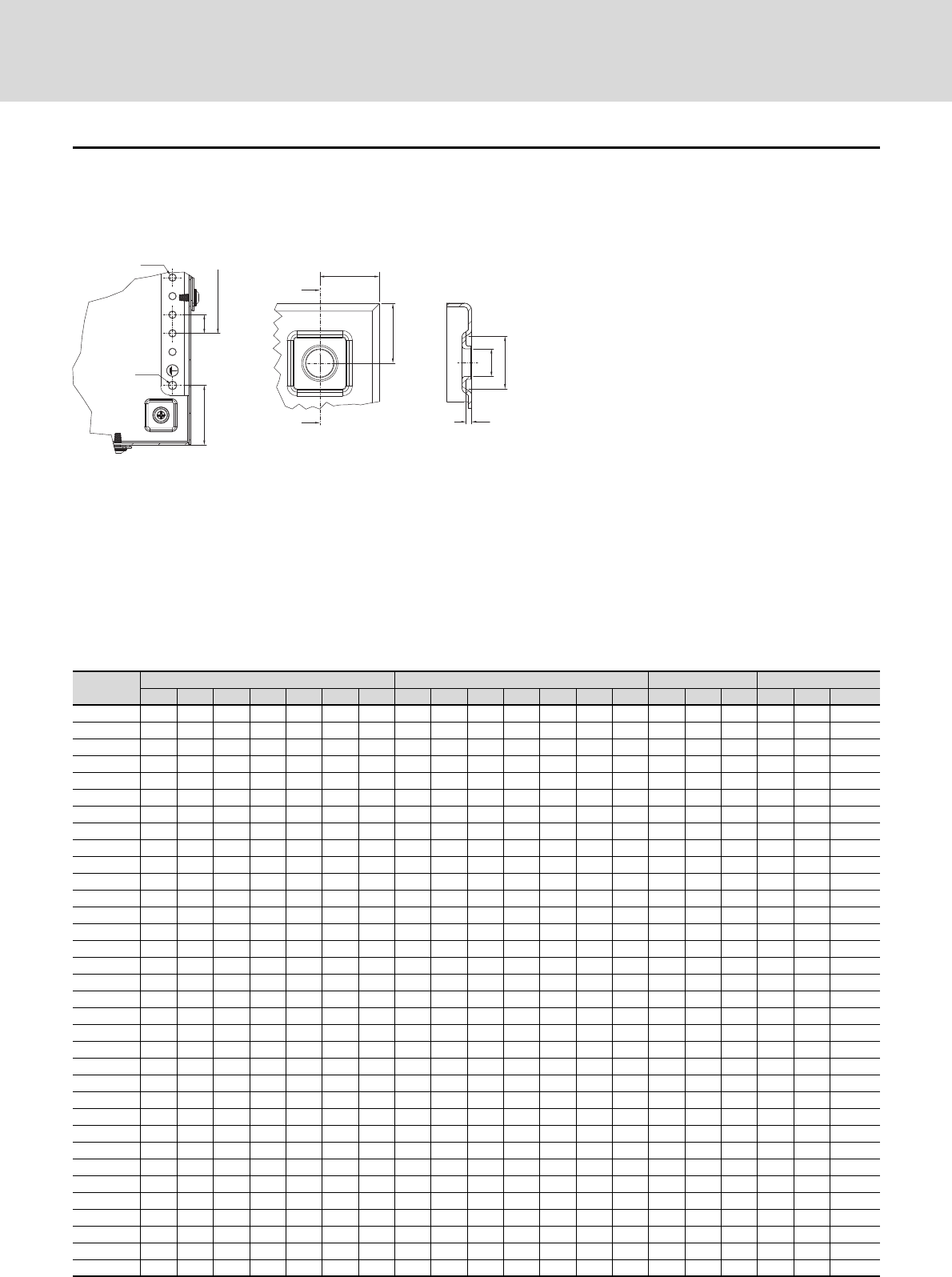
Schrank
B1 = Gehäusebreite (Gesamtbreite)
B2 = Deckelbreite
B3 = Lichte Breite Gehäuseöffnung
B4 = Lichte Breite zwischen L-Winkeln
B5 = Achsabstand der Montagebohrungen
in den L-Winkeln
B6 = Befestigungsabstand Gehäuse
B7 = Flanschplattenöffnung
H1 = Gehäusehöhe (Gesamthöhe)
H2 = Deckelhöhe
H3 = Lichte Höhe Gehäuseöffnung
H4 = Gesamthöhe 12,5 mm-Lochraster
H5 = Lichtes Maß L-Winkel
H6 = Befestigungsabstand Gehäuse
N = Anzahl 12,5 mm-Lochraster
T1 = Gesamttiefe
T3 = Einbautiefe (Abstand Deckelinnenseite
zum L-Winkel bzw. zur Mittenschiene)
T7 = Flanschplattenöffnung
Flanschplatte
M = Flanschplattenbreite
O = Flanschplattentiefe
40
12.5
Ø 4.6
N x 12.5 = H4
M6
20
20
C
C
□ 17.7
Ø 9.25
2
Einzelheit X Einzelheit Y Schnitt C – C










