Specification Sheet

Ubbink Vent Components - Condensing
Rinnai Corporation • 103 International Drive • Peachtree City, GA 30269 • Toll-Free: 1-800-621-9419 • Fax: 678-829-1666 • www.rinnai.us
© 2009 Rinnai Corporation
UbbinkPP-KA-SP-1 8/2009
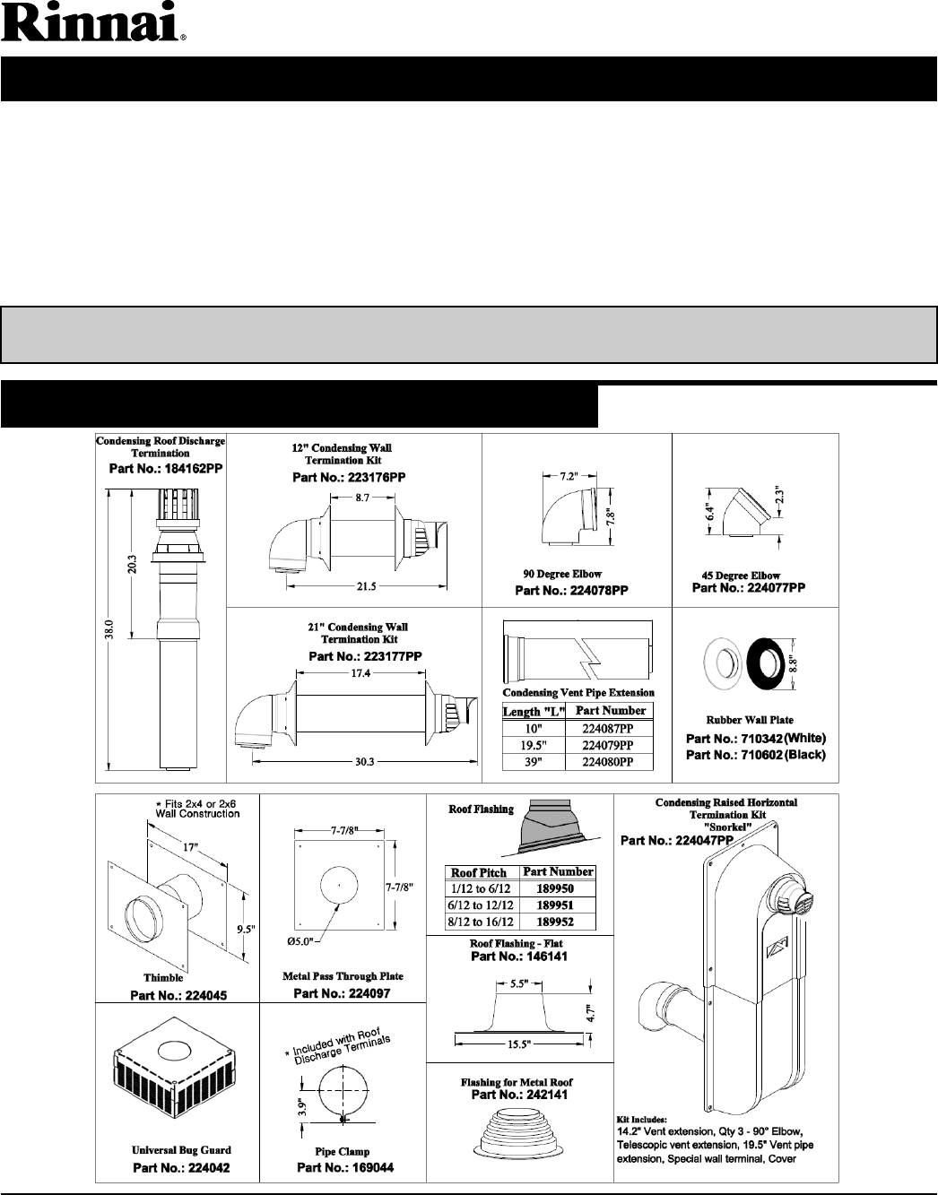
CONDENSING, (PP) POLYPROPYLENE VENT COMPONENTS
• For use on Rinnai condensing appliances only.
• Do not combine the vent components illustrated on this page with any other vent components.
• Material Spec: Polypropylene (Inner/Exhaust) Plastic (Outer Combustion Air)
Refer to the Rinnai installation manual and the Ubbink Rolux® Condensing Vent System Installation Instructions for
complete installation details and requirements.
Rinnai is continually updating and improving products; therefore, specifications are subject to change without prior
notice. Local, state, provincial and federal codes must be adhered to prior to installation.
(PP) - Polypropylene

