Service manual
32DDO04.A
1
-
4
• COMPONMENT TERMINOLOGY
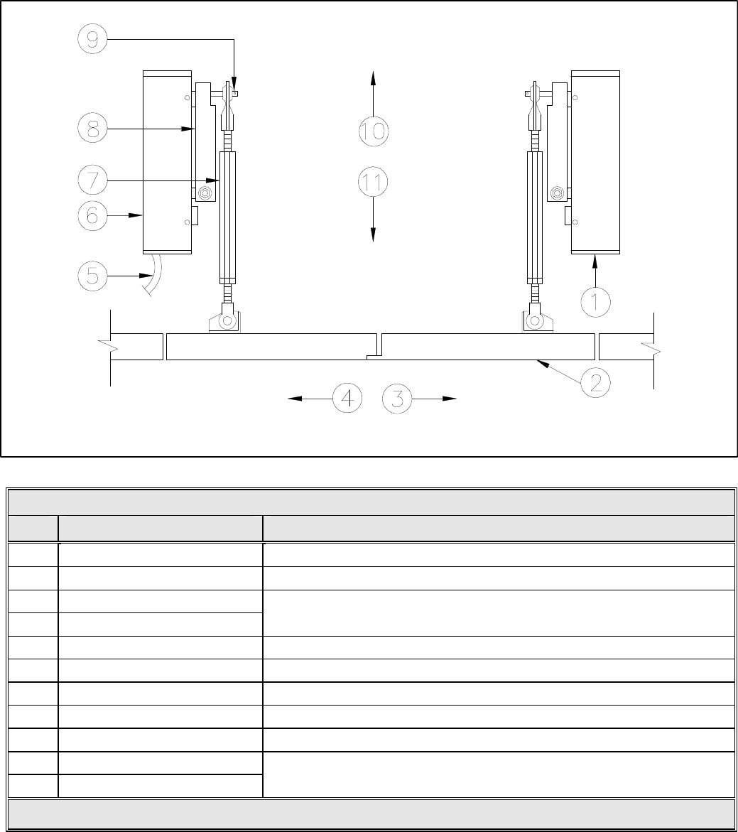
The references used throughout this manual are illustrated in Figure 1-1 and defined in Table 1-1. Refer to Chap-
ter IV, “Spare Parts” for more details.
TABLE 1-1: RDO2700 SERIES SWING POWER DOOR OPERATOR TERMINOLOGY
REF.
NAME DESCRIPTION
1 Right Motor Opens and closes the right van door.
2 Van Doors Doors that are controlled by the Swing Power Door Operators.
3 Right
4 Left
Reference points from outside the vehicle looking at the lift inside the
vehicle
5 Swinger Harness Connects the Swing Power Door Operators to the lift.
6 Left Motor Opens and closes the left van door.
7 Rod (Left and Right) Connects van door to Actuator Arm.
8 Actuator Arm (Left and Right) Connects Rod to Motor.
9 Emergency Release Pin Disconnects Swing Power Door Operators in the event of power failure.
10 Inboard
11
Outboard
Reference points from outside the vehicle looking at the lift inside the
vehicle
END OF TABLE
FIGURE 1-1: RDO2700 SERIES POWER SWING DOOR OPERATOR
