Service manual
32DDO04.A
2
-
2
D. FINAL ADJUSTMENTS
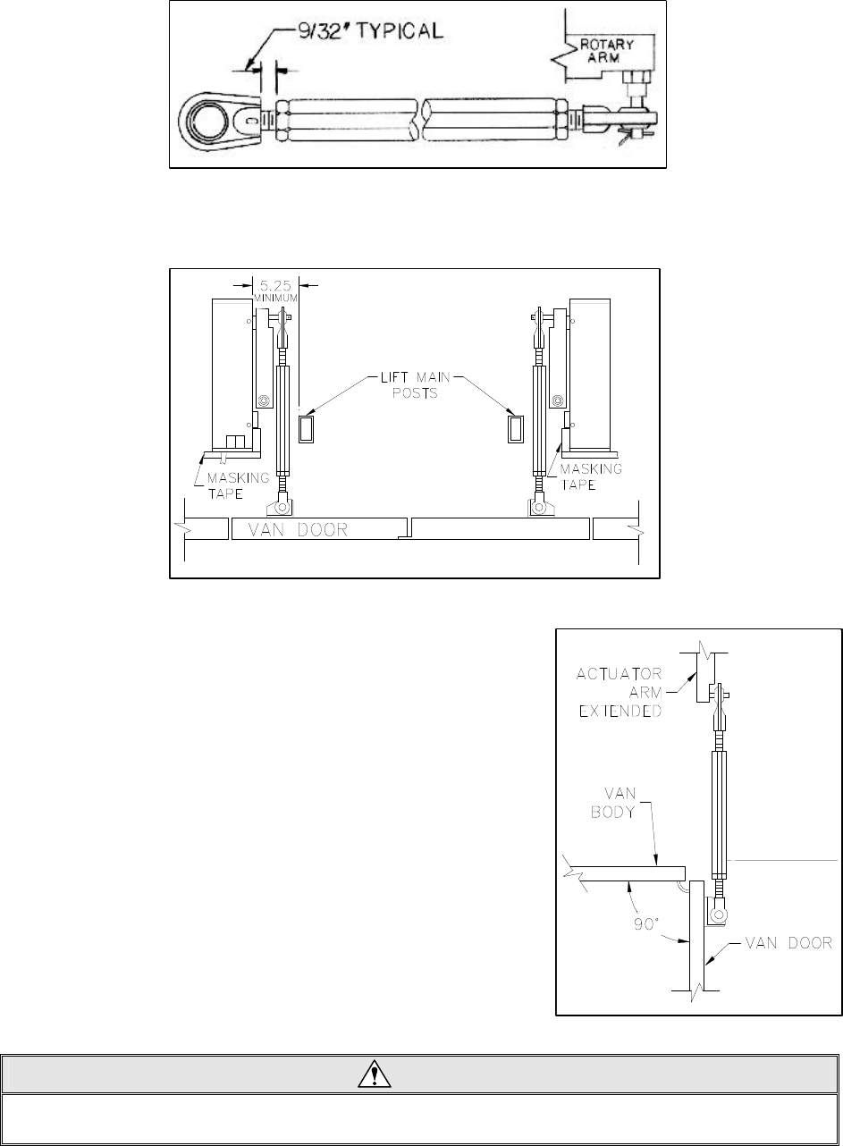
1. Refer to Figure 2-2. As packaged, the power door operators are in the "door closed" position. The
rod ends should be adjusted as shown:
1. Refer to Figure 2-3. Fasten the rods to the door brackets. With the Swing Power Door Operator units in
the closed position, place the door brackets against doors. Close the doors and use tape to mark the ends
of the motors' mounting plates.
2. Refer to Figure 2-4. With power, move actuator arms to their ex-
tended positions and open doors 90
0
or greater.
3. With the motor mounting plates masked, place the door brackets
against the doors' inner surfaces and mark bracket locations.
4. The ball centerline on the door brackets should be at the same
height (or not more than 1/4" higher) as the pin centerline on the ac-
tuator arms. (The bottom of the door brackets should be just above
floor level.)
5. With power, return the power door unit to the closed position and
verify that the motors and door brackets do not hit the parallel door
arm of the lift, spare tire, seat, etc. Be sure the rod does not inter-
fere with the actuator arm in the closed position.
6. Attach the door brackets to the doors using hex-head screws. At-
tach the motor mounting plates to the van floor with flat-head slotted
screws.
WARNING!
BEFORE DRILLING, CHECK UNDERNEATH VAN. DO NOT DRILL INTO FUEL TANK, WIRING,
FUEL LINES, HYDRAULIC LINES, ETC.
7. Adjust the door seal "tightness" by adjusting the connector rod.
FIGURE 2-2: ROD ADJUSTMENT
FIGURE 2-3: MOTOR LOCATION
FIGURE 2-4: BRACKET LOCATION
