Submittal Sheet

“In keeping with its policy of continuous progress and product improvement, Manufacturer reserves the right to make changes without notice.”
PRINTED IN U.S.A. 3-12 QG FORM NO. X33-1393
Supersedes Form No. X66-1317 Rev. 1
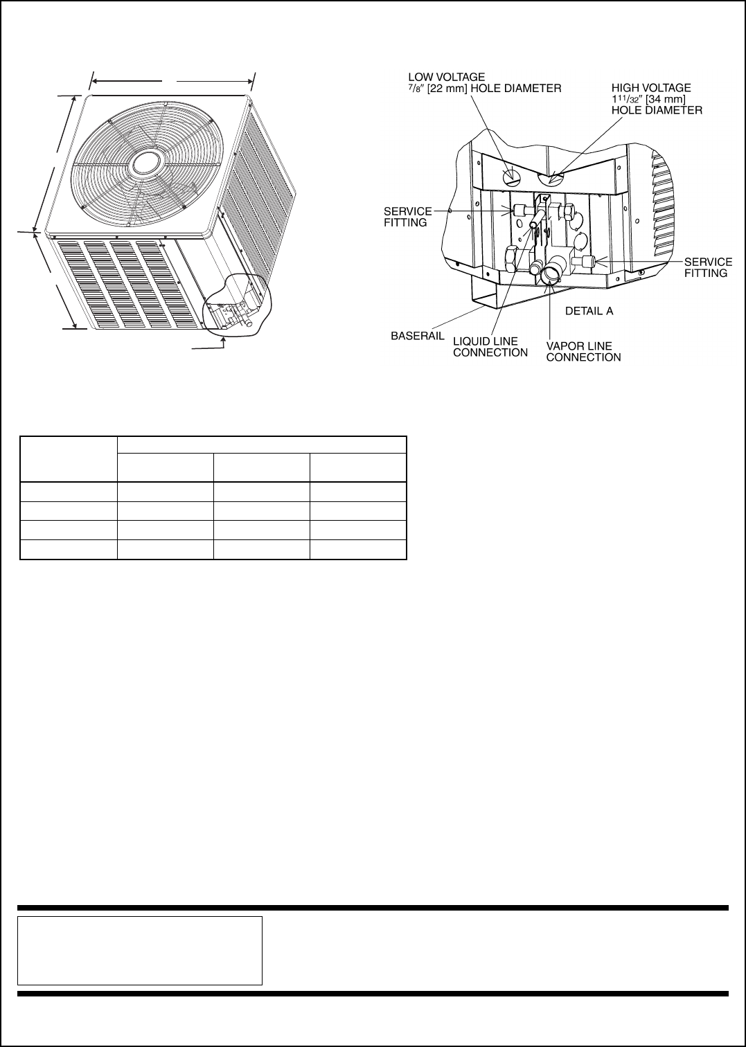
16AJL 24, 36, 48, 60
L
H
SEE DETAIL A
w
Full Metal Jacket
Before proceeding with installation, refer
to installation instructions packaged
with each model, as well as complying
with all Federal, State, Provincial, and
Local codes, regulations, and practices.
[ ] Designates Metric Conversions
Model No.
16AJL
Unit Dimensions
18, 24 23
5
/8 [600] 23
5
/8 [600]
Width “W”
Inches [mm]
Length “L”
Inches [mm]
Height “H”
Inches [mm]
24
1
/4 [616]
24 31
5
/8 [803] 31
5
/8 [803] 27
3
/8 [695]
36, 48, 60 31
5
/8 [803] 31
5
/8 [803] 35
3
/8 [899]
30, 36, 42
27
5
/8 [702] 27
5
/8 [702] 24
1
/4 [616]