Installation - Filter Cabinet User guide

Form I-CAUA-FC, P/N166162R2, Page 1
Form I-CAUA-FC (Version .2)
Obsoletes I-CAUA-FC (Version .1)
Installation Instructions
Applies to: Optional Return Air Filter
Cabinet for Model CAUA
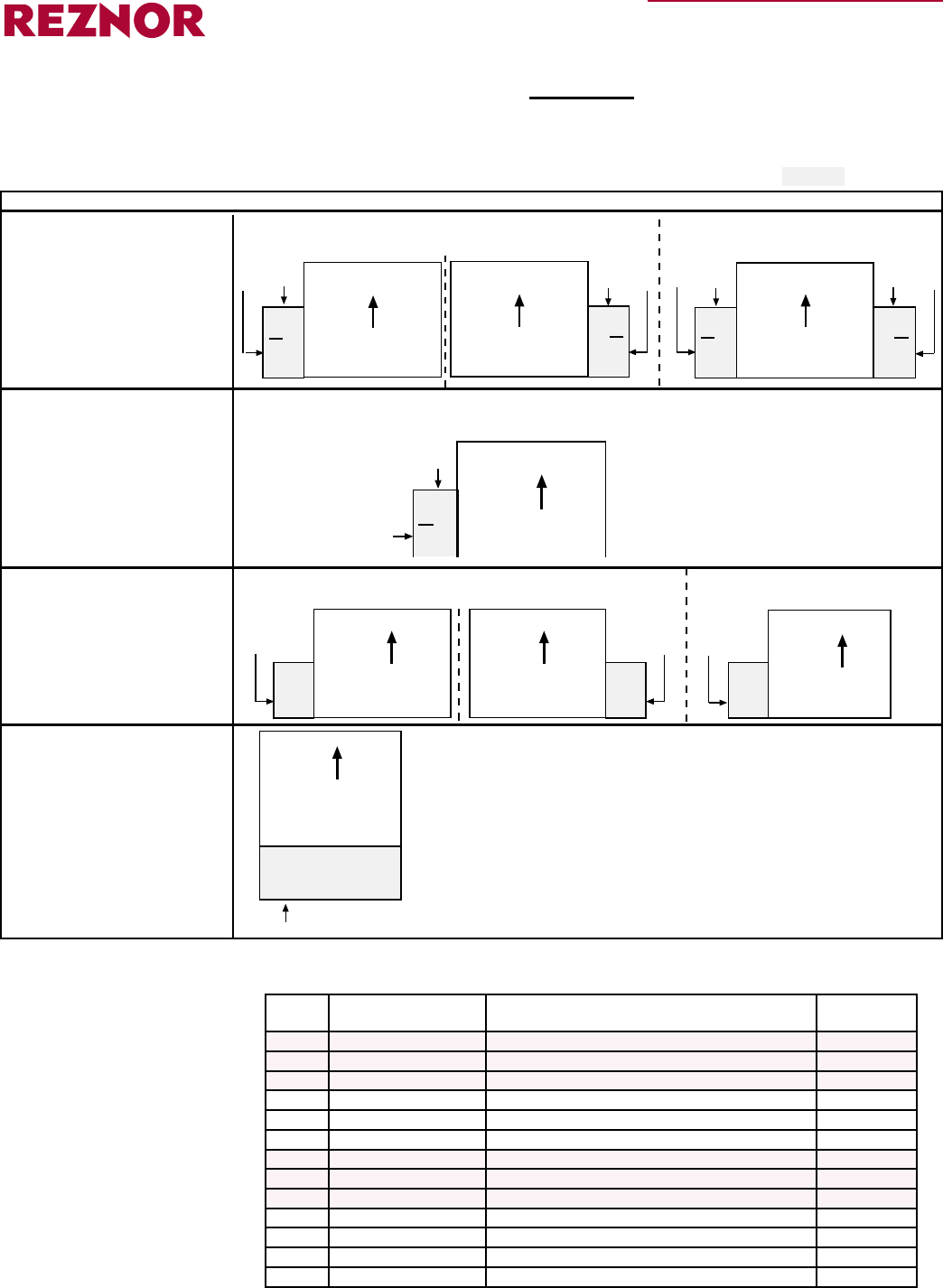
Description/
Application
Optional return air lter
cabinets for Model CAUA
packaged heating systems
are available in a variety
of congurations (see
illustrations above).
Table of Contents by Option and Conguration (Option CW return air lter cabinet is shaded.)
Filter Cabinet ............... Pages
Model CAUA
(any view; all sizes)
Return air enters
from bottom
Bottom Return
Air Filter Cabinet
Airflow
CAUA
Left Side View
Top
Rear
Inlet
Front of Heater
Entering
return air
Airflow
Entering
return air
Installation instructions for all types are in this form. Select and apply the information
for the option that matches your installation.
Options CW 4, 5, 6
Description/Application .. 1-2
Components...................... 2
Preparation .................... 3-4
Installation Instructions
with Rear Inlet .......... 4-6
with Top Inlet ............ 6-8
Options CW 7, 12, 11
Description/Application ...1-2
Components ...................... 2
Preparation .....................3-4
Installation Instructions
with Rear Inlet ..........4-6
with Top Inlet ............ 6-8
Options CW 8, 9, 10
Description/Application ..1-2
Components ...................... 8
Preparation ....................... 9
Installation Instructions
with Rear Inlet ........ 9-11
Options CW 13, 14, 15, 16
Description/Application .. 1-2
Components.....................11
Preparation ......................11
Installation Instructions ... 12
CW 4, 5, 6 attached to Either Side of
Model CAUA - all sizes
CW 4, 5, 6 attached to Both Sides
of Model CAUA 250 or 300
CW 7, 12, 11 attached to Rear of Model CAUA - all sizes
CW 8, 9, 10 attached to Either Side of
Model CAUA 150 or 200
CW 8, 9, 10 attached to Rear of
Model CAUA 150 or 200
CW13, 14, 15, 16 acts as a base
allowing return air to enter vertically
from under a Model CAUA heater.
Option Factory or Field Filter Type
Applies to
CAUA Sizes
CW4 Field assembled 2" Pleated All
CW5 Field assembled 2" Permanent All
CW6 Field assembled 2" Field-supplied (pleated or permanent only) All
CW7 Field assembled 2" Pleated All
CW12 Field assembled 2" Permanent All
CW11 Field assembled 2" Field-supplied (pleated or permanent only) All
CW8 Field assembled 2" Pleated 150 and 200
CW9 Field assembled 2" Permanent 150 and 200
CW10 Field assembled 2" Field-supplied (pleated or permanent only) 150 and 200
CW13 Factory assembled 2" Disposable All
CW14 Factory assembled 2" Pleated All
CW15 Factory assembled 2" Permanent All
CW16 Factory assembled 2" Field-supplied (pleated or permanent only) All










