User System Interface Board User's Manual
Table Of Contents
- Cover
- Cautions
- IMPORTANT INFORMATION
- SAFETY PAGE
- Preface
- Contents
- Section 1 Configuration
- Section 2 Environmental Conditions
- Section 3 Product Specifications
- Section 4 User Interface Specifications
- Section 5 Connection Procedures
- 5.1 Connecting User System Interface Board to User System
- 5.2 Connecting User System Interface Board to EV-Chip Board
- 5.3 Recommended Dimensions for User System Mount Pad (Footprint)
- 5.4 Dimensions for EV-Chip Board and User System Interface Board
- 5.5 Resulting Dimensions after Connecting User System Interface Board
- Section 6 Installing the MCU to the User System
- Section 7 Verifying Operation
- Section 8 Notice
- Colophon

14
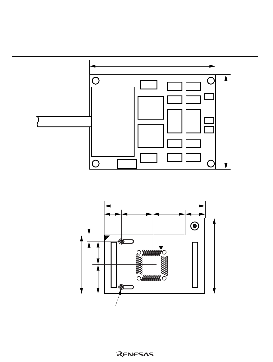
5.4 Dimensions for EV-Chip Board and User System Interface Board
The dimensions for the EV-chip board and the user system interface board are shown in figure 11.
140.0
116.0
Unit: mm
Tolerance: ±0.5 mm
EV-chip board
User system interface board
19.5 31.0 33.5 16.0
100.0
92.0
69.0
29.5
5.0
34.5
Spacer
Figure 11 Dimensions for EV-Chip Board and User System Interface Board