User System Interface Board User's Manual
Table Of Contents
- Cover
- Cautions
- IMPORTANT INFORMATION
- SAFETY PAGE
- Preface
- Contents
- Section 1 Configuration
- Section 2 Environmental Conditions
- Section 3 Product Specifications
- Section 4 User Interface Specifications
- Section 5 Connection Procedures
- 5.1 Connecting User System Interface Board to User System
- 5.2 Connecting User System Interface Board to EV-Chip Board
- 5.3 Recommended Dimensions for User System Mount Pad (Footprint)
- 5.4 Dimensions for EV-Chip Board and User System Interface Board
- 5.5 Resulting Dimensions after Connecting User System Interface Board
- Section 6 Installing the MCU to the User System
- Section 7 Verifying Operation
- Section 8 Notice
- Colophon

13
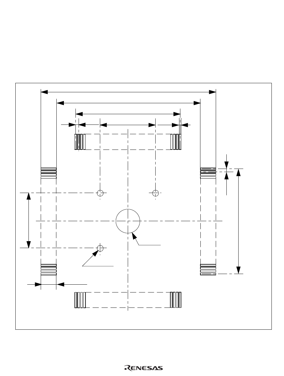
5.3 Recommended Dimensions for User System Mount Pad (Footprint)
Figure 10 shows the recommended dimensions for the mount pad (footprint) for the user system
with an IC socket for an FP-144F package (NQPACK144SD: manufactured by Tokyo Eletech
Corporation). Note that the dimensions in figure 10 are somewhat different from those of the
actual chip's mount pad.
Unit: mm
Tolerance: ±0.10 mm
0.50
0.257.00
23.00
19.00
0.5 x 35 = 17.5
7.0
2.00
3 - Ø1.0
0.5 x 35 = 17.5
Ø3.2
SL-type
0.50
Figure 10 Recommended Dimensions for Mount Pad