- REgency Owners & Installation Manual Freestanding Woodstove F2400M, S2400M

Regency Freestanding Woodstove
11
Horizontal Installation
Standard Ceiling Installation
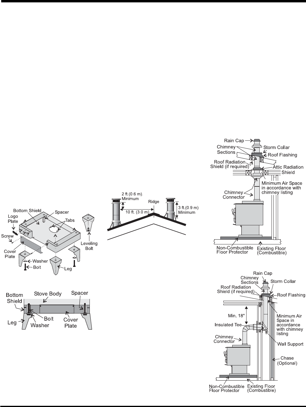
8) To complete your chimney installation, install
the double wall connector pipe from the
stove’s fl ue collar to the chimney support
device.
9) If you are using a horizontal connector,
the chimney connector should be as high
as possible while still maintaining the 18"
(457mm) minimum distance from the hori-
zontal connector to the ceiling.
10) NOTE: Residential Close Clearance and
Alcove installations require a listed dou-
ble wall connector from the stove collar
to the ceiling level.
The diagrams below illustrate one way to in-
stall your unit into a standard ceiling or with a
horizontal connector. Check with your dealer
or installer for information on other options
available to you.
INSTALLATION
STEP-BY-STEP
CHIMNEY AND
CONNECTOR
INSTALLATION
Note: These are a generic set of chimney in-
stallation instructions. Always follow
the manufacturers own instructions
explicitly. Verify the Minimum Recom-
mended Heights for Woodstove Flue
(Table 1 in the Installation section).
1) With your location already established, cut
and frame the roof hole. It is recommended
that no ceiling support member be cut for
chimney and support box installation. If it is
necessary to cut them, the members must
be made structurally sound.
2) Install radiant shield and support from
above.
3) Stack the insulated pipe onto your fi nish
support to a minimum height of 3 feet above
the roof penetration, or 2 feet above any
point within 10 feet measured horizontally.
There must be at least 3 feet of chimney
above the roof level.
Note: Increasing the chimney height above
this minimum level will sometimes
help your unit to “breathe” better
by allowing a greater draft to be cre-
ated. This greater draft can decrease
problems such as, diffi cult start-ups,
back-smoking when door is open,
and dirty glass. It might be suffi cient
to initially try with the minimum re-
quired height, and then if problems
do arise add additional height at a
later date.
4) Slide the roof fl ashing over your chimney
and seal the fl ashing to the roof with roofi ng
compound. Secure the fl ashing to your roof
with nails or screws.
5) Place the storm collar over the fl ashing,
sealing the joints with a silicone caulking.
6) Fasten the raincap with spark screens (if
required) to the top of your chimney.
7) For optimum effi ciency when installing into
a masonry chimney, size accordingly, i.e.
the 6" (152mm) fl ue dia. is 28.28 sq.in.
Leg and Bottom Shield Assembly
F2400M & S2400M
Bottom Shield 020-911
Legs (set of 4)
Steel - Painted Black 850-125
Cast - Painted Black 850-126
Cast - Gold Plated 850-127
The instructions below apply to the steel leg,
painted cast leg and the gold plated cast leg. It
will be easier to attach the legs to the stove if
the stove is tipped on its back (preferably on a
soft surface to prevent scratching). Ensure to be
extremely careful when tipping stove.
1) Remove the 4 bolts from underside of the
base of the pedestal and discard. Also
remove cover plate and put to the side.
2) Line up the heat shield with the bottom of
the unit.
3) Start threading the bolt and washer (supplied
with the bottom shield) for about 1/4 of the
way through the leg with the washers being
underneath the legs. Ensure that the legs
are properly aligned with heat shield and
tighten the bolts.
4) Level the stove by adjusting the levelling
bolts in the bottom of each leg.
5) Reinstall cover plate.
6) Install logo plate onto heat shield by placing
in 2 holes as shown in diagram.
If you are installing outside combustion air, bend
the tabs out 90 degrees. Pipe fresh air into the
bottom shield by using a minimum 4" duct pipe
with a mesh grill at the outside termination. At-
tach the pipe to the 2 tabs with screws.










