- REgency Owners & Installation Manual Freestanding Woodstove F2400M, S2400M

Regency Freestanding Woodstove
10
INSTALLATION
Diagram 2
Diagram 3
STOVE ASSEMBLY
PRIOR TO
INSTALLATION
All units require either the pedestal or 4 legs at-
tached to the base. The F2400M stove requires
either the Airmate or Rear Heat Defl ector on top
of the stove. Clearances to combustible materials
vary depending on whether the airmate or rear
heat defl ector is installed, so be sure to check
the Minimum Clearances, Installation section.
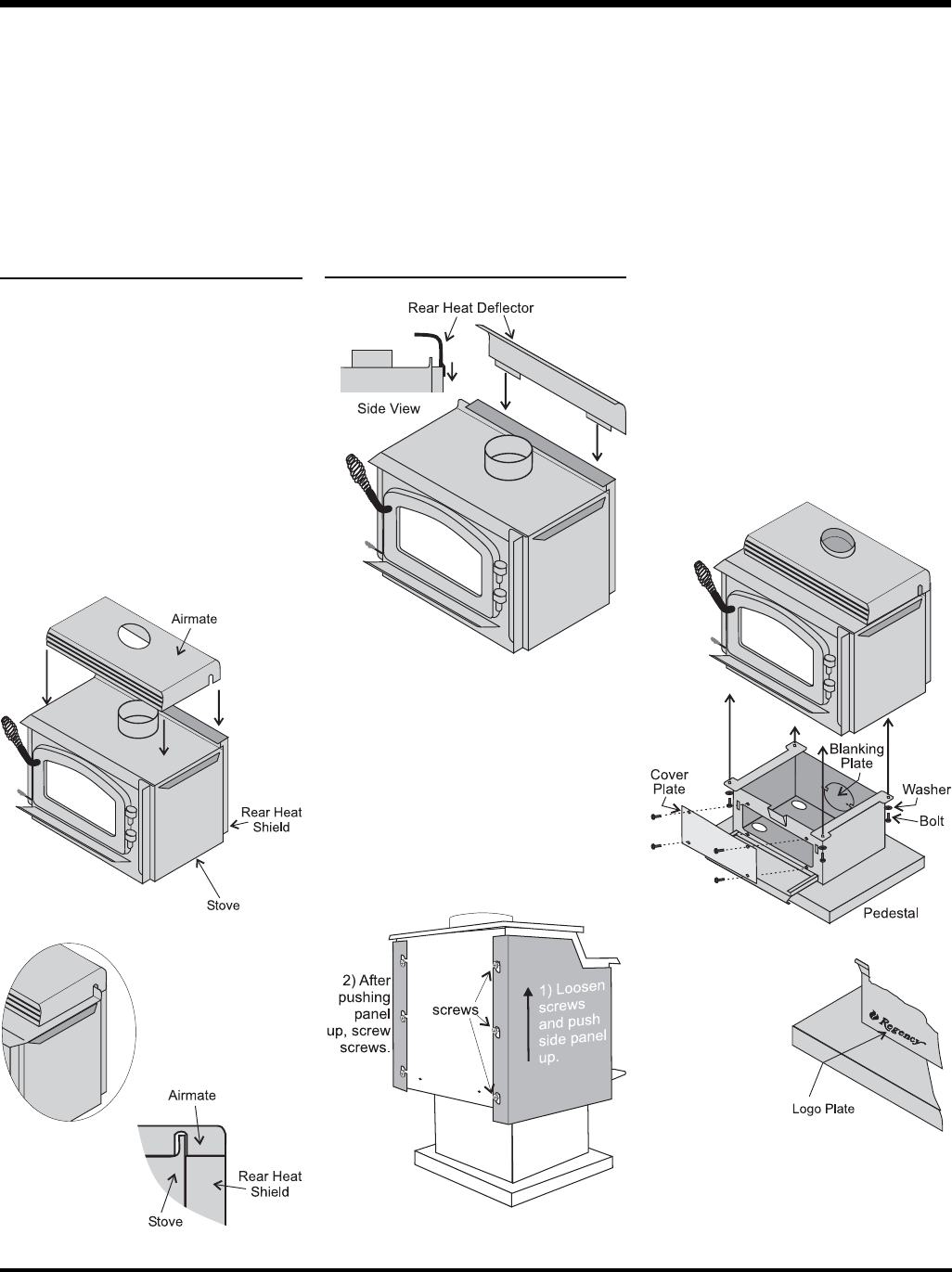
Airmate Assembly for F2400M
(850-105)
1) The airmate sits on top of the stove with
the slots in the sides fi tting over the curved
defl ector on the rear stove top. See diagram
1. Discard the Rear Heat Defl ector that is
supplied with the unit, it is not required if the
airmate is installed.
2) Center the airmate and push it forward to the
front of the stove. The back of the airmate
should be level with the back and sides of
the rear heat shield. See Diagrams 2 & 3.
Rear Heat Defl ector
Assembly for F2400M
(815-555)
The rear heat defl ector is supplied with the stove
and must be installed unless the optional airmate
has been selected. It stops the heat radiated from
the fl ue collar from overheating the rear wall. The
rear heat defl ector is installed on top of the rear
heat shield, as shown in Diagram 4.
S2400M Side Shield Adjustment
The left and right side shields are lowered for
shipping and handling. It allows for a handhold
on the top of the stove. Before placing in the
Step Stove in its fi nal position, the side shields
must be raised.
Loosen the screws on the rear on the stove (3 per
side), slide the side panel up as far as possible
and then secure by tightening the screws.
Pedestal Assembly
F2400M & S2400M
(020-915)
1) For easier assembly, tip the stove on its
back (onto a soft surface to prevent scratch-
ing).
Hint: If you have chosen the Ash Drawer
option, remove the ash dump cover plates
before attaching the pedestal. See page 17
"Ashdrawer Kit Installation".
2) Remove the blanking plate if
a) you are not installing outside combustion
air or
b) outside air is to be brought in from the
rear of the stove.
3) Unscrew the 4 bolts in the under-side of the
stove. Align the holes in the corners of the
pedestal top with the corresponding holes
in the base of the stove. Fasten using a bolt
and washer for each corner.
4) Push the
Regency logo
into the two
holes in the
front bottom
left corner of
the pedestal
cover plate.
Note: Any paint touch up should be done
prior to placing logo on pedestal.
5) If not using ash drawer, then cover plate must
be installed. If using ash drawer, then disregard
cover plate.
Diagram 1
Diagram 4










