Owners manual

Figure 2
© 2016 Cequent Performance Products, Inc. - Imprimé au Mexique
Feuille 7 de 12 56016N 3/1/2016 Rev. A
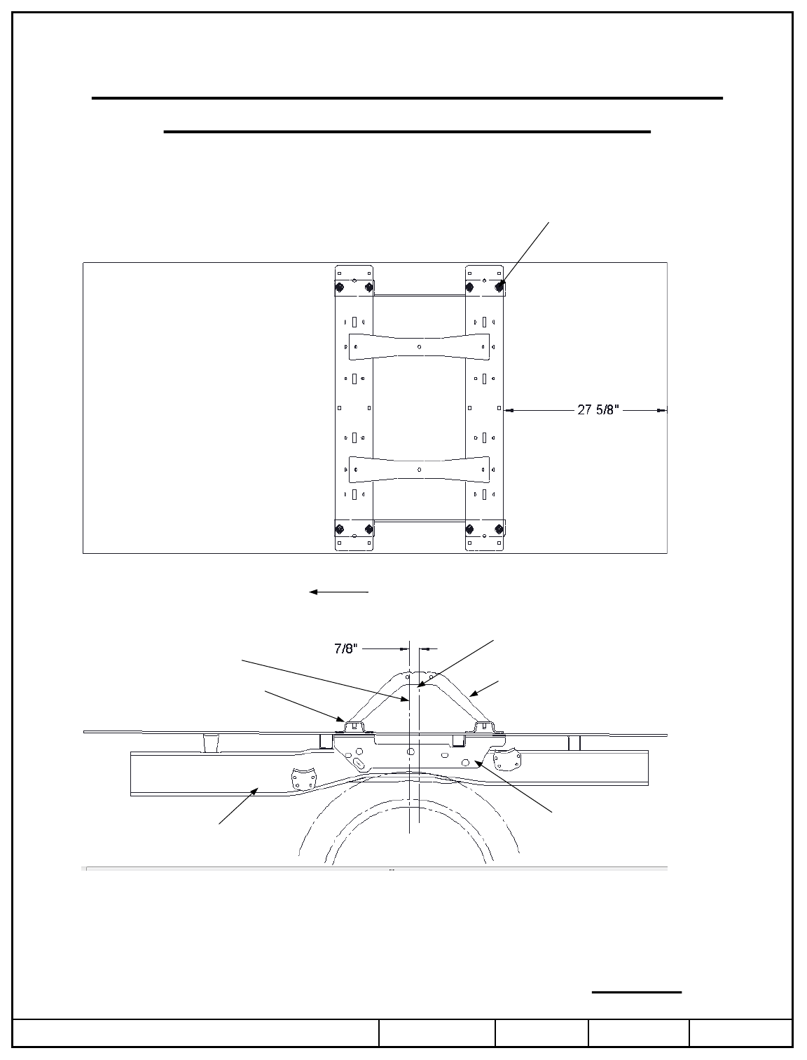
DIMENSIONS SPÉCIFIQUES POUR ENSEMBLE
DE TRAVERSES DE MONTAGE 30153
SUPPORT DE CADRE
CADRE
SUPPORT D'ATTELAGE/CURSEUR/
COL-DE-CYGNE
(SUPPORT D'ATTELAGE ILLUSTRÉ)
TRAVERSE DE
MONTAGE
LIGNE DE CENTRE DE L'ATTELAGE
LIGNE DE CENTRE DE
D'AXE
APPROX.
AVANT DU
VÉHICULE
.
.
EMPLACEMENTS DES
TROUS ET BOULONS
.