Owners manual

Figure 2
©2016 Cequent Performance Products, Inc. – Printed in Mexico
Sheet 3 of 12 56016N 3/1/2016 Rev. A
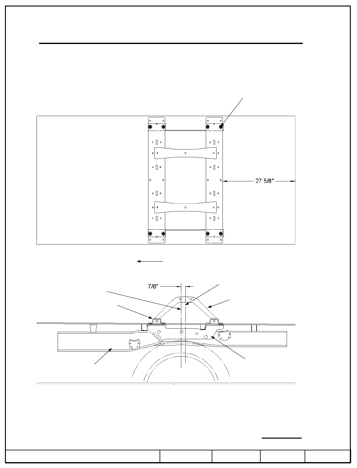
DIMENSIONS SPECIFIC FOR RAIL KIT 30153
FRAME BRACKET
FRAME
HITCH SUPPORT / SLIDER /
GOOSE (HITCH SUPPORT SHOWN)
MOUNTING RAIL
CENTER LINE OF HITCH
CENTER LINE OF AXLE
APPROX.
FRONT OF VEHICLE
.
.
DRILL AND BOLT LOCATIONS
.