Owners manual

Figura 2
© 2016 Cequent Performance Products, Inc. - Impreso en México
Hoja 11 de 12 56016N 3/1/2016 Rev. A
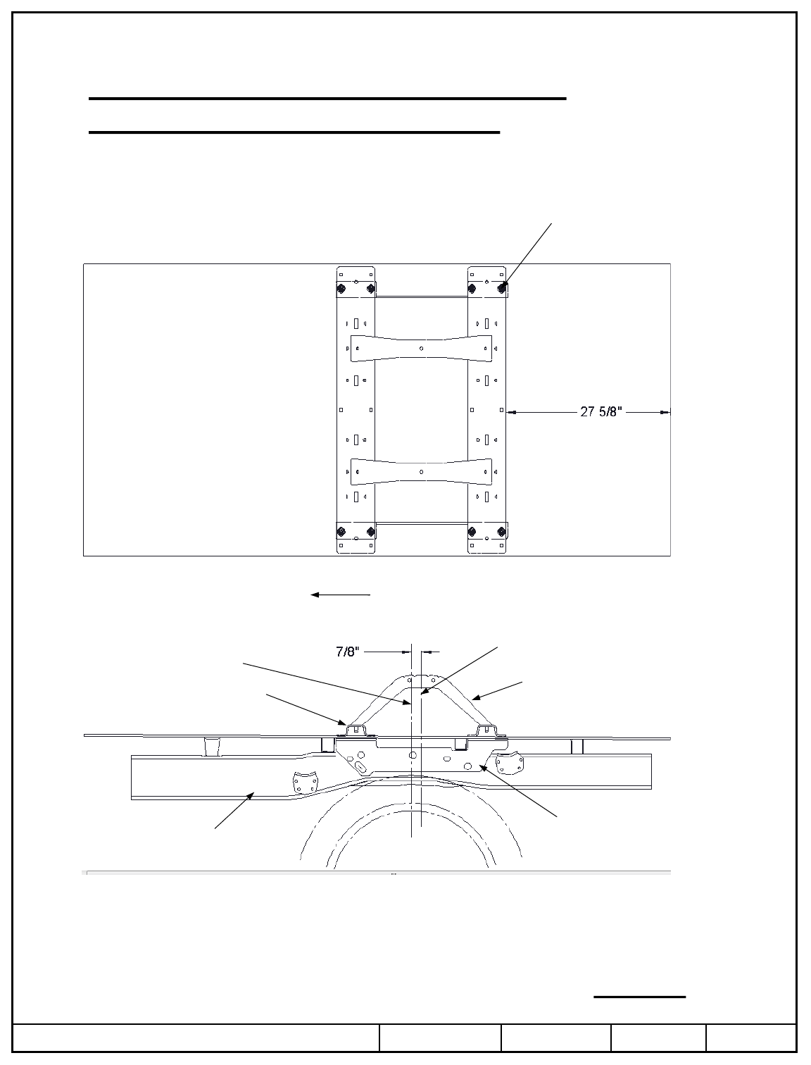
DIMENSIONES ESPECÍFICAS PARA
EL KIT DE LARGUEROS 30153
SOPORTE DEL BASTIDOR
BASTIDOR
SOPORTE DEL ENGANCHE /
DESLIZADOR / GANSO (SOPORTE
DEL ENGANCHE SE MUESTRA)
LARGUERO DE
MONTAJE
LÍNEA CENTRAL DEL ENGANCHE
LÍNEA CENTRAL DEL
EJE
APROX.
FRENTE DEL
VEHÍCULO
.
.
UBICACIONES DE
PERFORACIÓN Y PERNOS
.