Use and Care Guide
Manuals
Brands
Redi Base Manuals
Bath
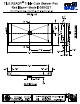
30 in. x 60 in. Triple Threshold Shower Base with Center Drain
1
1
Summary of content (1 pages)
PAGE 1