Installation Guide
Manuals
Brands
Rand & Reardon Manuals
Boilers
RRG Series 84% AFUE Gas Water Boiler with 96,000 BTU Input and 70,000 Output
1
2
3
4
5
6
7
8
9
10
8
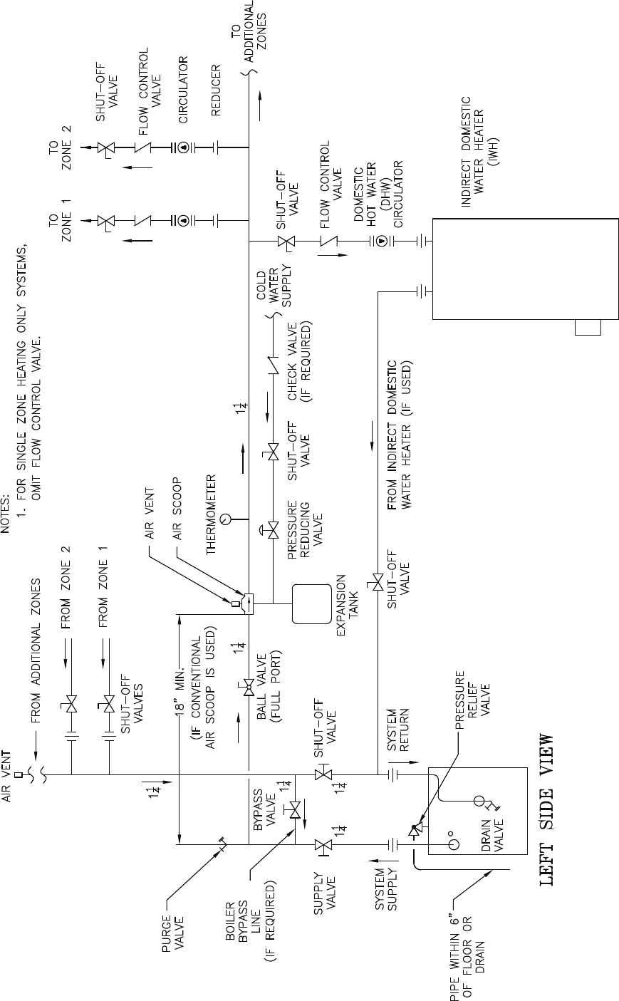
Figure 5: Recommended W
ater Piping for Circulator Zoned Heating Systems
1
...
...
6
7
8
9
10
...
...
40