Installation Guide

6
III. Water Piping and Trim
WARNING
Failure to properly pipe boiler may result in 
improper operation and damage to boiler or 
building.
A.  Design and install boiler and system piping to 
prevent oxygen contamination of boiler water.
  Oxygen contamination sources are system leaks 
requiring addition of makeup water, ttings, and 
oxygen permeable materials in distribution system. 
Eliminate oxygen contamination by repairing system 
leaks, repairing ttings, and using non-permeable 
materials in distribution system.
B.  Install circulator with anges, gaskets and bolts 
provided. 
C.  Install Safety Relief Valve. Safety Relief Valve must 
be installed with spindle in vertical position.
WARNING
Safety relief valve discharge piping must be piped 
near oor to eliminate potential of severe burns.  
Do not pipe in any area where freezing could 
occur. Do not install any shut-off valves.
D.  Connect system supply and return piping to boiler. 
Refer to Figures 4 and 5. Also consult Residential 
Hydronic Heating Installation and Design I=B=R 
Guide. Maintain minimum ½ inch clearance from hot 
water piping to combustible materials.
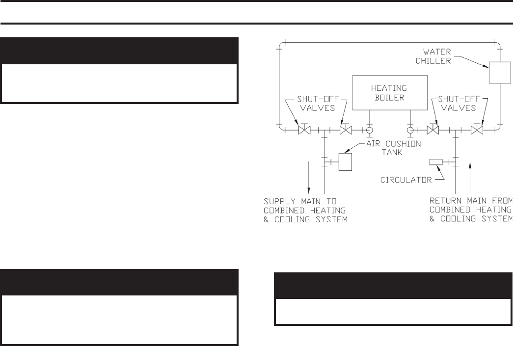
E.  If boiler is used in connection with refrigeration 
systems, boiler must be installed with chilled medium 
piped in parallel with the heating boiler using 
appropriate valves to prevent chilled medium from 
entering boiler. See Figure 3. Also consult Residential 
Hydronic Heating Installation and Design I=B=R 
Guide.
F.  If boiler is connected to heating coils located in 
air handling units where they may be exposed to 
refrigerated air, boiler piping must be equipped with 
ow control valves or other automatic means to prevent 
gravity circulation of boiler water during operation of 
cooling system.
G.  Use a boiler bypass if the boiler is to be operated 
in a system which has a large volume or excessive 
radiation where low boiler water temperatures may be 
encountered (i.e. converted gravity circulation system, 
etc.).
CAUTION
Boiler return water cannot be lower than 130°F for 
proper function.
  Install bypass between boiler supply and return in near 
boiler piping as shown in Figures 4 and 5. Bypass 
should be same size as the supply and return lines with 
valves located in bypass and supply outlet as illustrated 
in Figures 4 and 5 in order to regulate water ow to 
maintain higher boiler water temperatures.
  Set by-pass and boiler supply valves to half throttle 
position to start. Operate boiler until system water 
temperature reaches normal operating range.
  Adjust valves to provide 180° to 200°F supply water 
temperature. Opening the boiler supply valve will raise 
system temperature, while opening by-pass valve will 
lower system supply temperature.
H.  If it is required to perform a long term pressure 
test of the hydronic system, the boiler should rst be 
isolated to avoid a pressure loss due to the escape of air 
trapped in the boiler.
  To perform a long term pressure test including the 
boiler, ALL trapped air must rst be removed from the 
boiler. 
  A loss of pressure during such a test, with no visible 
water leakage, is an indication that the boiler contained 
trapped air.
Figure 3: Recommended Piping for Combination 
Heating & Cooling (Refrigeration) Systems










