Installation Guide
Manuals
Brands
Rand and Reardon Manuals
Boilers
RRG Series 84% AFUE Gas Water Boiler with 130,000 BTU Input and 96,000 Output
1
2
3
4
5
6
7
8
9
10
4
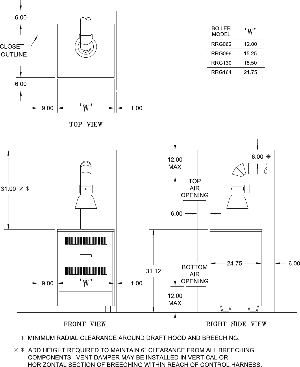
Figure 2: Minimum Clearances to Combustible Construction for Closet Installation
1
...
2
3
4
5
6
...
...
40