Coffeemaker Use and Maintenance Millennium

45
6.1.2. Elektrischer Anschluß
Die Maschine wird vorgeschriftsmässig nach den
Elektronormen anschlussbereit geliefert.
Bevor die Maschine an das Stromnetz geschlossen
wird, überprüfen Sie, dass die Daten auf dem Kenn-
schild (Bild 1) mit denen des Netzanschluss überein-
stimmen.
Das elektrische Stromkabel muss direkt an einen
vorhandenen normengerechten Schalter geschlos-
sen werden. Kontrollieren Sie, dass ein leistungs-
starker und den Normen entsprechender Erdleiter
vorhanden ist.
Die Erdverbindung und falls vorgesehen der
Entladungsschutz müssen ebenfalls den Normen
entsprechen.
Für das Stromnetz muss ein normengerechtes Ka-
bel mit Schutzleiter (Erdung) verwendet werden.
Bei Drehstrom-Speisung muss ein Fünfleiter-Kabel
(Dreiphasen + Sternpunkt + Erde) verwendet wer-
den.
Bei Einphasen-Speisung ein Dreileiter-Kabel (Pha-
se + Sternpunkt + Erde).
In beiden Fällen muss wie auf dem Maschinen-
schild steht (Bild 1), vor dem Stromkabel ein auto-
matischer Fehlerstrom-Schutzschalter 4 (Bild 6)
komplett mit Magnetauslösern vorgesehen sein,
deren Kontakte mindestens 3 mm Öffnung haben
müssen.
Wichtig ist, dass jede Maschine mit den entspre-
chenden Sicherheitsvorrichtungen ausgerüstet ist.
ACHTUNG
Sollte das Stromkabel beschädigt sein,
müssen die Baufirma oder deren Technischer
Wartungsdienst oder auf jedem Fall ein
Fachelektriker dieses unverzüglich
auswechseln, damit jedes Risiko
ausgeschlossen wird.
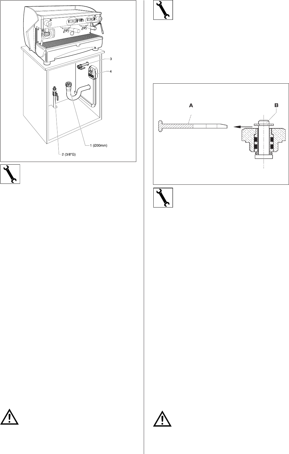
6.3. Positionierung
z Das Gerät auf der dafür vorgesehenen
horizontalen Oberfläche installieren.
Bevor die jeweiligen Anschlüsse vorgenommen
werden, die Rohre der Wasserversorgung reinigen:
z Den Wasserhahn des Versorgungsnetzes öffnen
und das Wasser einige Minuten lang fließen lassen.
z Die Rohre für Wasserzufuhr- und -abfluß
anschließen.
z Den Stecker in die Steckdose stecken.
z Die Gasleitung anschließen
Die Wasserrohre der Maschine gut spülen:
z Den Wasserhahn des Versorgungsnetzes ganz
öffnen;
z Hauptschalter 1 betätigen; abwarten, daß sich der
Boiler bis zum eingestellten Füllstand füllt.
z Hauptschalter 2 betätigen, um die Erwärmung des
Wassers im Boiler zu starten.
z Alle Baugruppen so betätigen, daß über etwa eine
Minute Wasser abgelassen wird; den Vorgang noch
zweimal wiederholen.
z Etwa eine Minute lang Dampf über die
Dampflanzen ausströmen lassen.
z Etwa eine Minute lang warmes Wasser ablassen;
den Vorgang noch zweimal wiederholen.
z Die Schalter 1 und 2 ausschalten.
z Das im Boiler enthaltene Wasser entleeren. Siehe
Punkt 10.3
ACHTUNG
Wird die Maschine über mehr als 24 Stun-
den nicht benutzt, vor dem Beginn der Arbei-
ten eine Spülung der inneren Bauteile vor-
nehmen und die vorstehend beschriebenen
Arbeitsgänge wiederholen.
Fig. 6
6.2. Vorbereitungsarbeiten
V.A. VENTIL EINSETZUNZ
Das V.A. Ventil ist auf der oberen Seite des Kessels
installiert.
Bei der Aufstellung nehmen Sie den Federkeil zum
Klemmer “A” heraus und beobachten Sie dass, der
Zapfer des Zapfer des Ventiles frei fliesst.
Diese Operation ist sehr wichtig, um eine korrekten
Arbaeitsweise des Ventiles zu gewaehrleisten.
Fig. 7










