Coffeemaker Use and Maintenance Millennium

13
6.1.2. Alimentazione elettrica.
La macchina è fornita pronta per l’allacciamento
secondo le specifiche richieste.
Prima di collegare la macchina accertarsi che i dati
di targa siano rispondenti a quelli della rete di distri-
buzione elettrica.
Il cavo di alimentazione elettrica va allacciato diret-
tamente alla connessione precedentemente predi-
sposta secondo le norme vigenti.
L’impianto di messa a terra e di protezione contro le
scariche atmosferiche deve obbligatoriamente es-
sere realizzato come prescritto dalle norme.
Utilizzare per la rete di alimentazione un cavo a
norme con conduttore di protezione (filo a terra)
Per alimentazione trifase utilizzare un cavo a 5 con-
duttori (3 fasi+neutro+terra).
Per alimentazione monofase utilizzare un cavo a3
conduttori (fase+neutro+terra).
In entrambi i casi predisporre a monte del cavo di
alimentazione un interruttore automatico differen-
ziale 4 (Fig.6), completo di sganciatori magnetici
secondo i dati riportati sulla targa di identificazione
macchina (Fig.1). I contatti devono avere una aper-
tura uguali o superiore a 3 mm.
Si ricorda che ogni macchina deve essere dotata
delle proprie sicurezze.
ATTENZIONE
Se il cavo di alimentazione è danneggiato
esse deve essere sostituito dal costruttore
o dal suo servizio assistenza tecnica o co-
munque da una persona con qualifica simi-
lare, in modo da prevenire ogni rischio.
Fig. 6
6.3. Piazzamento
z Posizionare il corpo macchina sul piano orizzon-
tale preposto.
Prima di effettuare le connessioni, eseguire un accu-
rato lavaggio dei tubi idrici di rete:
z Aprire completamente il rubinetto acqua di rete e
lasciare scorrere per qualche minuto.
z Procedere alla connessione idrica di carico e sca-
rico acqua.
z Allacciare la macchina alla presa di corrente.
z Allacciare il tubo del gas.
Eseguire un accurato lavaggio di tutta la tubazione
idrica della macchina:
z Aprire completamente il rubinetto dell’alimentazio-
ne idrica di rete;
z Azionare l’interruttore generale 1; attendere che
la caldaia si riempia sino al livello impostato.
z Azionare l’interruttore generale 2 per dare inizio al
riscaldamento dell’acqua in caldaia.
z Azionare ogni gruppo in modo da far uscire acqua
per circa un minuto; ripetere l’operazione per due
volte.
z Erogare vapore dalle lance vapore per circa un
minuto.
z Erogare acqua calda per circa un minuto; ripetere
l’operazione per due volte.
z Spegnere gli interruttori 1 e 2.
z Svuotare l’acqua in caldaia. Vedi punto 10.3
ATTENZIONE
Quando la macchina non effettua erogazioni
per più di 24 ore, prima di iniziare il lavoro
procedere a un lavaggio dei componenti in-
terni, ripetendo le operazioni sopra descritte
6.2. Operazioni preliminari:
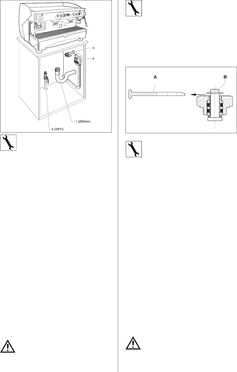
VALVOLA ANTIRISUCCHIO
Sulla parte superiore della caldaia è installata la val-
vola antirisucchio, all’atto dell’installazione prov-
vedere a sfilare la linguetta di bloccaggio “A” e
accertarsi che il perno della valvola “B” scorra
liberamente.
Questa operazione è della massima importanza per
il corretto funzionamento della valvola antirisucchio.
Fig. 7










