Manual

34
4920A–GPS–01/06
ATR0630 [Preliminary]
12. Package Information
11. Ordering Information
Extended Type Number Package MPQ Remarks
ATR0630-7KQY BGA96 2000
7 mm × 10 mm, 0.8 mm pitch, Pb-free,
RoHS-compliant
ATR0630-EK1 - 1 Evaluation kit/Road test kit
ATR0630-DK1 - 1
Design kit including design guide and PCB
Gerber files
specifications
according to DIN
technical drawings
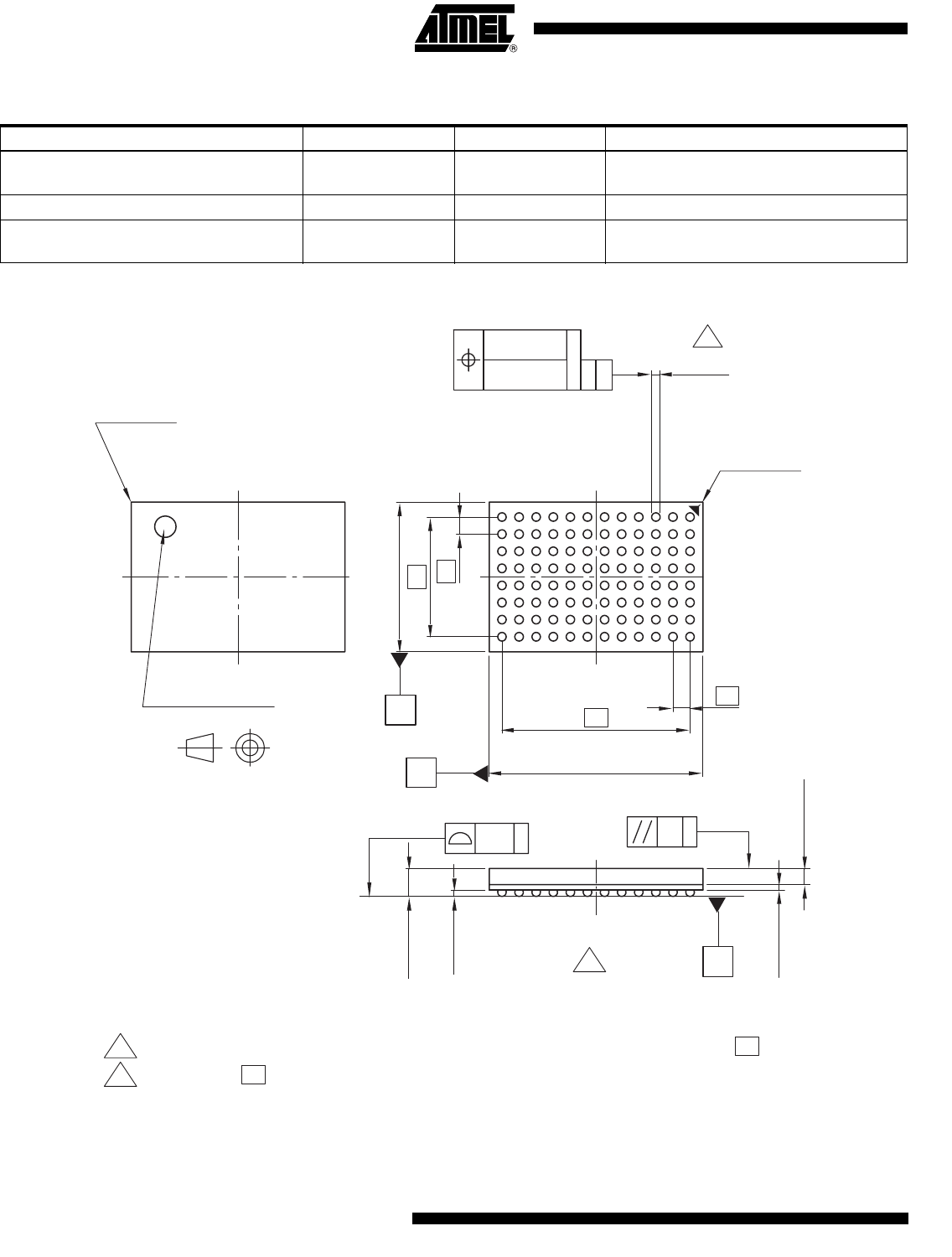
Package: ATR0630
Dimensions in mm
Top View
Pin A1 Laser Marking
A1 Corner
A1 Corner
C
B
B
0.1C
0.08 C
C
Seating plane
3.
Primary datum and seating plane are defined by the spherical crowns of the solder balls
C
2.
3.
A
A
1234
Bottom View
Issue: prel. copy; 02.03.05
Drawing-No.: 6.580-5005.01-4
nm
n m
5 6 7 8 9 10 11 12 12 11 10 456789321
0.15
0.08
A
B
D
E
F
H
G
C
A
B
D
E
F
H
G
C
0.4±0.05
10±0.05
7±0.05
0.3±0.05
1.4 max
0.26
±0.04
0.75±0.05
0.8
0.8
5.6
8.8
1. All dimensions and tolerance conform to ASME Y 14.5M-1994
Note:
5. Unless otherwise specified tolerance: Decimal ±0.05, Angular ±2
˚
5. Raw ball diameter: 0.4 mm ref.
4. The surface finish of the package shall be EDM CHARMILLE #24 - #27
Dimension is measured at the maximum solder ball diameter, parallel to primary datum
C
2.










