Manual

Functional Description
The ADC0844 and ADC0848 contain a 4-channel and 8-
channel analog input multiplexer (MUX) respectively. Each
MUX can be configured into one of three modes of opera-
tion differential, pseudo-differential, and single ended.
These modes are discussed in the Applications Information
Section. The specific mode is selected by loading the MUX
address latch with the proper address (see Table I and Ta-
ble II). Inputs to the MUX address latch (MA0-MA4) are
common with data bus lines (DB0-DB4) and are enabled
when the RD
line is high. A conversion is initiated via the CS
and WR lines. If the data from a previous conversion is not
read, the INTR
line will be low. The falling edge of WR will
reset the INTR
line high and ready the A/D for a conversion
cycle. The rising edge of WR
, with RD high, strobes the data
on the MA0/DB0-MA4/DB4 inputs into the MUX address
latch to select a new input configuration and start a conver-
sion. If the RD
line is held low during the entire low period of
WR
the previous MUX configuration is retained, and the
data of the previous conversion is the output on lines DB0-
DB7. After the conversion cycle (t
C
s
40 ms), which is set
by the internal clock frequency, the digital data is trans-
ferred to the output latch and the INTR
is asserted low.
Taking CS
and RD low resets INTR output high and outputs
the conversion result on the data lines (DB0-DB7).
Applications Information
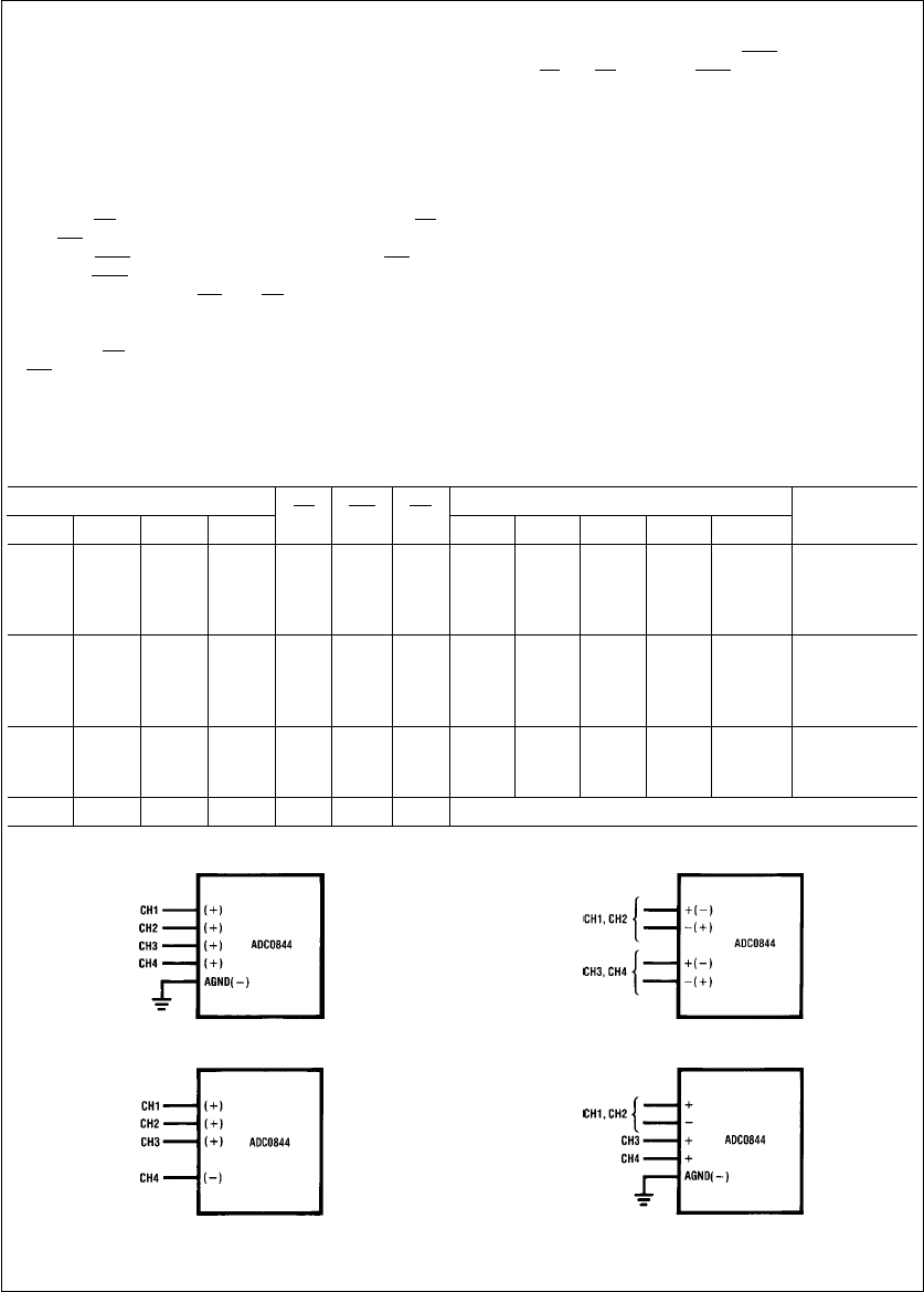
1.0 MULTIPLEXER CONFIGURATION
The design of these converters utilizes a sampled-data
comparator structure which allows a differential analog input
to be converted by a successive approximation routine.
The actual voltage converted is always the difference be-
tween an assigned ‘‘
a
’’ input terminal and a ‘‘
b
’’ input ter-
minal. The polarity of each input terminal of the pair being
converted indicates which line the converter expects to be
the most positive. If the assigned ‘‘
a
’’ input is less than the
‘‘
b
’’ input the converter responds with an all zeros output
code.
A unique input multiplexing scheme has been utilized to pro-
vide multiple analog channels. The input channels can be
software configured into three modes: differential, single-
TABLE I. ADC0844 MUX ADDRESSING
MUX Address
CS
WR RD
Channel
Ý
MUX
MA3 MA2 MA1 MA0 CH1 CH2 CH3 CH4 AGND Mode
XLLLL H
ab
XLLHL
£
H
ba
Differential
XLHLL H
ab
XLHHL H
ba
LHLLL H
ab
LHLHL
£
H
ab
Single-Ended
LHHLL H
ab
LHHHL H
ab
HHL LL H
ab
Pseudo-
HHLHL£H
ab
Differential
HHHLL H
ab
XXXXL£L Previous Channel Configuration
X
e
don’t care
4 Single-Ended
TL/H/5016–12
2 Differential
TL/H/5016–13
3 Pseudo-Differential
TL/H/5016–14
Combined
TL/H/5016–15
FIGURE 1. Analog Input Multiplexer Options
8










