Install Instructions

Cat. No. I1500 & I1504
Appareil de chauffage de
montage dans le sol.
Cher propriétaire,
Félicitations! Nous vous remercions d’avoir acheté ce nouveau radiateur fabriqué par une division de Marley
Engineered Products. Vous avez fait un bon investissement en choisissant le produit de la meilleure qualité de
l’industrie du chauffage. Veuillez lire soigneusement les instructions d’installation et d’entretien apparaissant
dans ce manuel. Vous profiterez de nombreuses années de confort de chauffage efficace avec ce produit de
Marley Engineered Products ... le leader de l’industrie en conception, fabrication, qualité et service.
... Les employés de
Marley Engineered Products
Lire attentivement - Ces instructions ont été écrites pour vous aider à
éviter des difficultés qui peuvent se produire pendant l'installation des radia-
teurs. Étudier les instructions avant de procéder à l'installation peut faire ga-
gner du temps et éviter des dépenses considérables plus tard. Observer les
procédures suivantes pour réduire le temps d'installation au minimum.
Pour réduire les risques d'incendie et d'électrocution :
1. Débrancher TOUTES les sources d'alimentation du radiateur depuis le
panneau d'alimentation principal avant de câbler ou d'effectuer un entre-
tien. S'assurer que l'alimentation soit coupée lors de l'installation du radi-
ateur dans le boîtier arrière.
2. Tout le câblage doit être conforme aux codes électriques locaux et
nationaux et le boîtier arrière du radiateur doit être mis à la terre.
3. Vérifier que la tension d'alimentation arrivant au radiateur corresponde à
la tension nominale imprimée sur la plaque signalétique du radiateur
avant de le mettre sous tension.
4. Ce radiateur ne convient PAS à une utilisation dans les emplacements
qualifiés de dangereux par l'association nationale de protection contre les
incendies (NFPA). Ce radiateur contient des pièces chaudes ou pro-
duisant des étincelles. NE PAS l'utiliser dans les endroits où de l'essence,
de la peinture ou d'autres liquides inflammables sont utilisés ou stockés.
5. Ce radiateur est chaud lorsqu'il fonctionne. Garder les cordons élec-
triques, les rideaux, les articles en mousse, la literie et les autres meubles
éloignés du radiateur. NE PAS installer ce radiateur de façon à ce que
l'air de sortie chaud souffle directement sur des articles qui peuvent être
endommagés par la chaleur tels que le plastique ou le vinyle transparent.
La chaleur du radiateur pourrait causer une décoloration de ces matéri-
aux si la température nominale qu'ils peuvent supporter est inférieure à
65˚C.
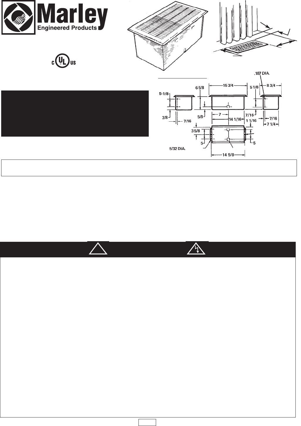
6. Ce radiateur est destiné UNIQUEMENT à une installation dans le sol. NE
PAS l'installer dans un mur, un plafond, ni de façon à ce que le débit d'air
dans le radiateur puisse être obstrué. NE PAS installer le radiateur sans
boîtier. NE PAS installer les côtés du radiateur à moins de 152 mm d'un
mur ni l'extrémité du radiateur à moins de 914 mm d'un mur.
7. NE PAS faire fonctionner le radiateur sans la grille en place. La grille doit
être bloquée avec les deux vis fournies pour éviter qu'elle ne soit retirée
de manière inintentionnelle.
8. Ce radiateur ne doit pas être utilisé dans les lieux humides où il risque
d'être trempé.
9. NE PAS insérer ni laisser des objets étrangers pénétrer dans les ouver-
tures du radiateur car cela pourrait causer une électrocution, un incendie,
ou des dégâts permanents du radiateur.
10. Puisque ce radiateur est destiné à des installations au sol, il a plus de
risque d'être sali et de nécessiter un entretien de routine. Il est recom-
mandé de nettoyer le radiateur et de l'entretenir au moins tous les ans.
Ne pas garder le radiateur propre peut entraîner un incendie ou une
panne prématurée.
11. Ce radiateur est équipé d'une alarme (alarme sonore ou lumineuse) qui
retentit (ou s'allume) si le radiateur surchauffe. Elle doit avertir l'utilisa-
teur d'un danger et déclencher une action par l'utilisateur pour corriger la
condition anormale qui existe. NE PAS continuer à utiliser le radiateur si
l'alarme retentit (ou s'allume). Le cycle répété de l'alarme indique que le
radiateur a besoin d'être nettoyé ou entretenu.
Instructions dʼinstallation et dʼentretien
CONSERVER CES INSTRUCTIONS
AVERTISSEMENT
9
FILE #E21609
!
152 mm
m
in. du
mur
2
5 mm min.
des rideaux
3
6”
(914mm)
m
in.
(130)
(168)
(
400)
(130)
(5)
(222)
(11)
(184)
(
11)
(17)
(3.5)
(127)
(22)
(371)
(4)
(127)
(92)
(11)
(10)
(16)
(178)
(357)
CARACTÉRISTIQUES
4 TROUS
2
TROUS DIAM. 3,5 mm
4 DÉCOUPES DIAM. 22 mm
4 TROUS










