Install Instructions

F
igure 3
11
INFORMATION IMPORTANTE
ENTRETIEN
POUR NETTOYER LE RADIATEUR : Le radiateur doit être nettoyé tous les
ans pour une efficacité maximum. Avant le nettoyage, s'assurer que l'ali-
mentation soit coupée et que le radiateur soit froid. Retirer la grille et net-
toyer le ventilateur avec un aspirateur muni d'une brosse. La grille peut être
nettoyée avec un chiffon légèrement humide le cas échéant.
AVIS SUR LE FONCTIONNEMENT
Le radiateur est équipé d'un disjoncteur thermique à réarmement automa-
tique qui coupe automatiquement le radiateur pour éviter un incendie si le
radiateur surchauffe. Si le radiateur surchauffe, une alarme sonore (ou
lumineuse sur certains modèles) retentit (ou s'allume) jusqu'à ce que le ra-
diateur refroidisse et que le disjoncteur thermique soit réarmé.
.
L'ACTIVATION DE L'ALARME SONORE (OU LUMINEUSE) SIGNIFIE
QUE LE RADIATEUR A ÉTÉ SOUMIS À DES CONDITIONS ANOR-
MALES LE FAISANT SURCHAUFFER. INSPECTER LE RADIATEUR
POUR S'ASSURER QU'IL NE SOIT PAS BOUCHÉ DE QUELLE QUE
MANIÈRE QUE CE SOIT (SI C'EST LE CAS, RETIRER CE QUI
BOUCHE). S'IL N'Y A PAS DE SIGNE DE BLOCAGE, IL EST
RECOMMANDÉ DE FAIRE INSPECTER LE RADIATEUR PAR UN
DÉPANNEUR OU UN ÉLECTRICIEN RÉPUTÉ.
a
ATTENTION
!
!
Nº DE MODÈLE
I1500 CODE DE DATE 0997
RADIATEUR DE SOL À AIR PULSÉ
120 1500/750 12.5/6.3/
VOLTS ALT. WATTS A
À N'UTILISER QU'AVEC LES BOÎTIERS SÉRIE I. NE PAS
FAIRE FONCTIONNER SANS LA GRILLE EN PLACE.
MARLEY ENGINEERED PRODUCTS
BENNETTSVILLE, SC 29512 4104-2206-000
774G LISTED
RADIATEUR AMBIANT
HOMOLOGUÉ
PLAQUE SIGNALÉTIQUE
En plus du contrôle automatique, le radiateur est muni d'un disjoncteur
monostable de secours. Le dispositif de sécurité ne s'ouvre que si le
contrôle automatique ne maintient pas une température sans danger.
Si ce contrôle se déclenche, le radiateur doit être réparé par un élec-
tricien qualifié.
Vis
peintes
(4) Vis
à tôle
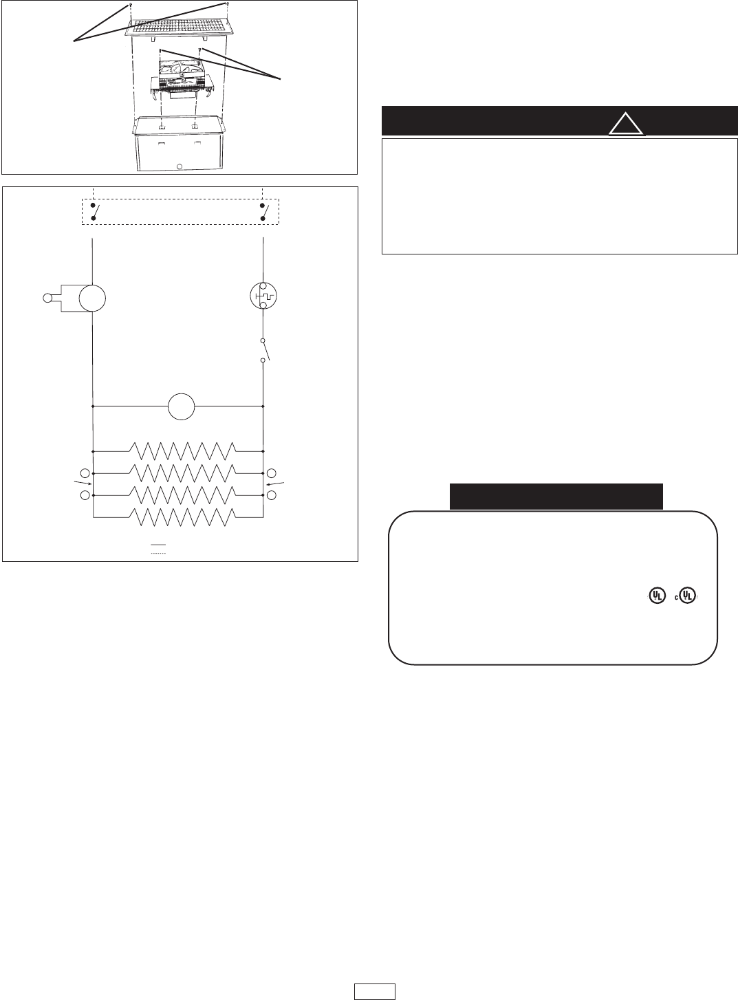
Alarm
B
uzzer
(or WarningLight)
Auto Reset
O
ver-temperature
Limit
Motor
L2 or N(120Volt)
BLACK - 240V/208V
W
HITE - 120V
L1
BLACK
One Shot
T
hermal
Cutout
(TCO)
Optional Single
Pole Built-in
Thermostat
(
Model ITSP)
1
2
1
2
RED
RED
Elements
Heater Wiring
Field Wiring
Optional Single
Pole or Double
Pole Wall
Thermostat
Figure 4
Thermostat
mural optionnel
à un ou deux
pôles
NOIR
D
isjoncteur
thermique
monostable
Thermostat
i
ntégré
optionnel à
un pôle
Alarme sonore
(ou lumineuse)
L
2 ou N (120 Volt)
N
OIR - 240V/208V
BLANC - 120 V
D
isjoncteur thermique
à réarmement
automatique
Moteur
ROUGE
R
OUGE
Éléments
Câblage du radiateur
Câblage du site










