Manual

22
Operation
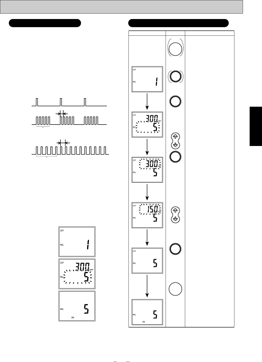
●Basic operation
1Pulse signals from the outside are received, and
automatic operation is performed by the number of
strokes corresponding to the preset multiplication.
2The multiplication can be set within the range 1 to
9999. at this time, the pump operates at the number
of operation strokes (spm) set in the manual mode.
Pulse Multiplication Mode
Setting the Discharge Volume
Setting the Pulse Multiplication Mode
* Solutions are mixed more uniformly during inline injection.
0.2 sec.
(The pump setting becomes 0.4 seconds
when 150 spm is set.)
When set
to 300 spm
Signal
(A) The pump operates 5 times at a stroke speed of 300 spm (default).
(B) The pump operates 5 times at a stroke speed of 1 to 300 spm (user setting).
Multiplication (Can be set within the range 1 to 9999)
As the default setting, external signals are canceled when an external
pulse input signal is input again during pump operation. You can set
to put the external pulse input signal on hold and store it in memory in
parameters (P-15, 16).
( B )
( A )
●Purpose of use
• This mode is used for flow rate proportional injection, etc.
(The pump operates proportionally to the number of input
pulses from the outside)
• Use when there are few pulses from a flow meter or other
instrument, and the injection amount is too small.
• Fine-adjustment of discharge volume is performed by the
stroke length adjusting dial.
●Operation panel display
●Operation control signal
No-voltage contact or open collector signal input
During pump stoppage
During setup
During pump operation
Display Operation Explanation
If the pump is operating, press the
STOP key to stop pump operation.
If the screen on the left is not
displayed, press the MODE key until
it is displayed.
The default of the pulse multiplication
mode is 1, and the default number of
strokes is 300 spm (maximum
number of strokes).
Press the SET key to enter the
multiplication setting screen.
The current multiplication starts
blinking.
Change the multiplication setting by
the UP/DOWN key within the range 1
to 9999.
Press the SET key to determine the
set multiplication.
When the setting value is determined,
the operating number of strokes
setup screen is entered.
(The number of strokes on the upper
row starts blinking.)
Change the operating number of
strokes setting by the UP/DOWN key
within the range 1 to 300 spm.
Determine the setting value by the
SET key.
When the setting value is determined,
the display stops blinking and lights.
The screen on the left indicates that
the pump operates fives times for
every single pulse at 150 spm (0.4
second) intervals.
STP goes out, and the pump enters
the pump operation mode.
The pump starts to operate
according to external pulse signals.
(ON lights when a pulse signal is
input.)
Press the START key to enter the
pump operation mode.
START
STOP
START
STOP
MODE
SET
RESET
SET
RESET
SET
RESET
05-45_PZiG Series(2)English 06.8.4 9:39 AM y[W 22










