User Instructions

www.pulsar.pl PSDCB09129C
4
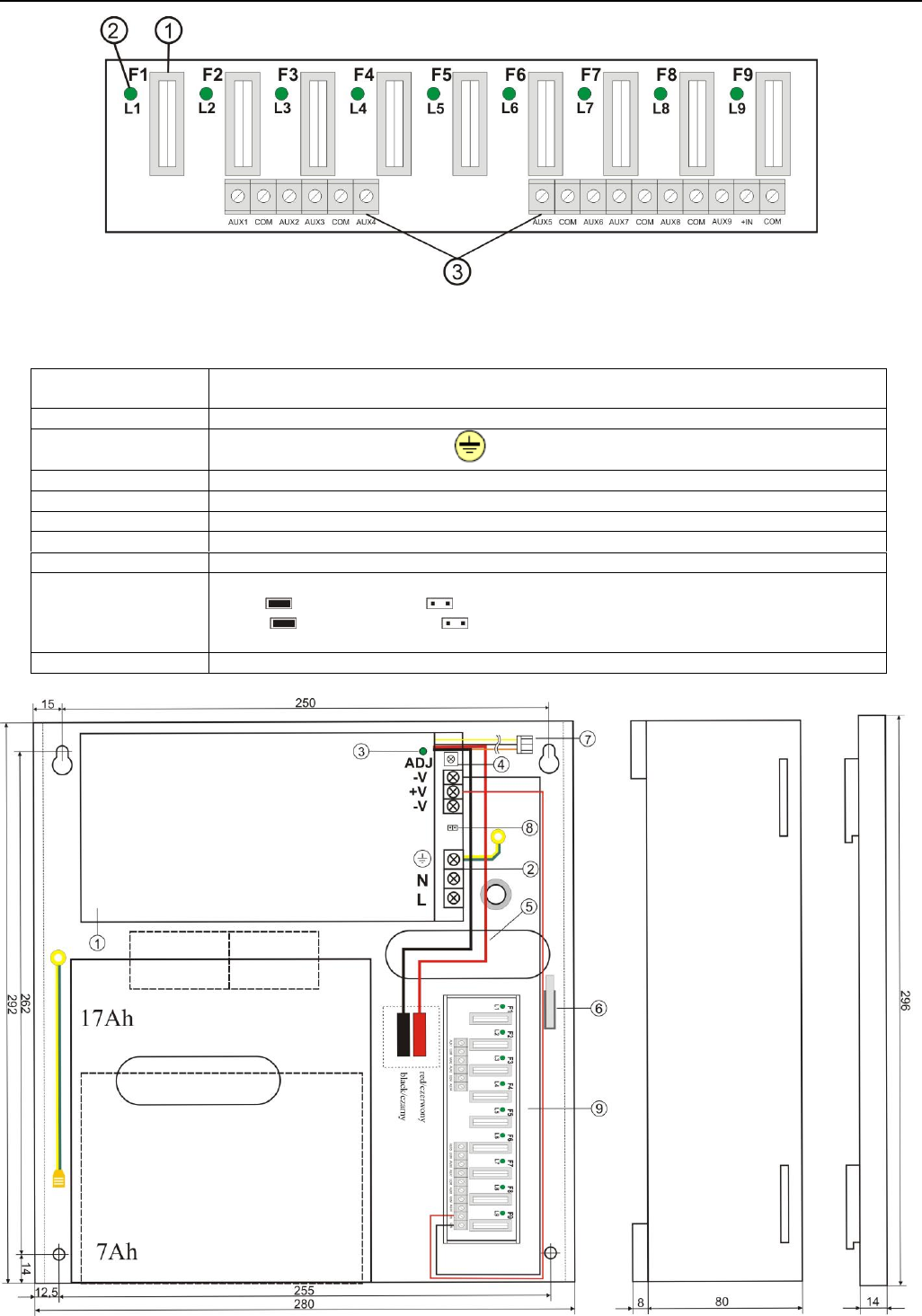
Obr.2. Pohľad na modul poistiek LB9.
Tabuľka 2. Popis prvkov a svoriek zdroja (tab.2)
Prvok číslo
[Obr. 3]
Popis
[1]
Modul zdroja
[2]
L-N svorky napájania zdroja, svorky ochrany PE
[3]
Zelená LED-ka signalizuje prítomnosť napätia AC
[4]
P1 potenciometer, regulácia výstupného napätia
[5]
BAT+/GND: výstup akumulátora + BAT=červený, GND=čierny
[6]
TAMPER, kontakt sabotážnej ochrany (NC)
[7]
Svorky dodatočnej optickej signalizácie
[8]
Jumper na výber prúdu nabíjania:
Ibat =1A Ibat =4A
Popis: nasadený jumper, bez jumpera.
Továrenské nastavenie: Ibat =1A (nasadený jumper).
[9]
Modul poistiek LB9
Obr.3. Rozmery zdroja.








